Erdgeschosswohnung mit Garten S104, in der Nähe von Meer und... Erdgeschosswohnung mit Garten S104, in der Nähe von Meer und Strand, Privlaka

239.000 €

Ausstattung
  • 75 m2
  • 2
  • 1
Lage

PRIVLAKA

Beschreibung
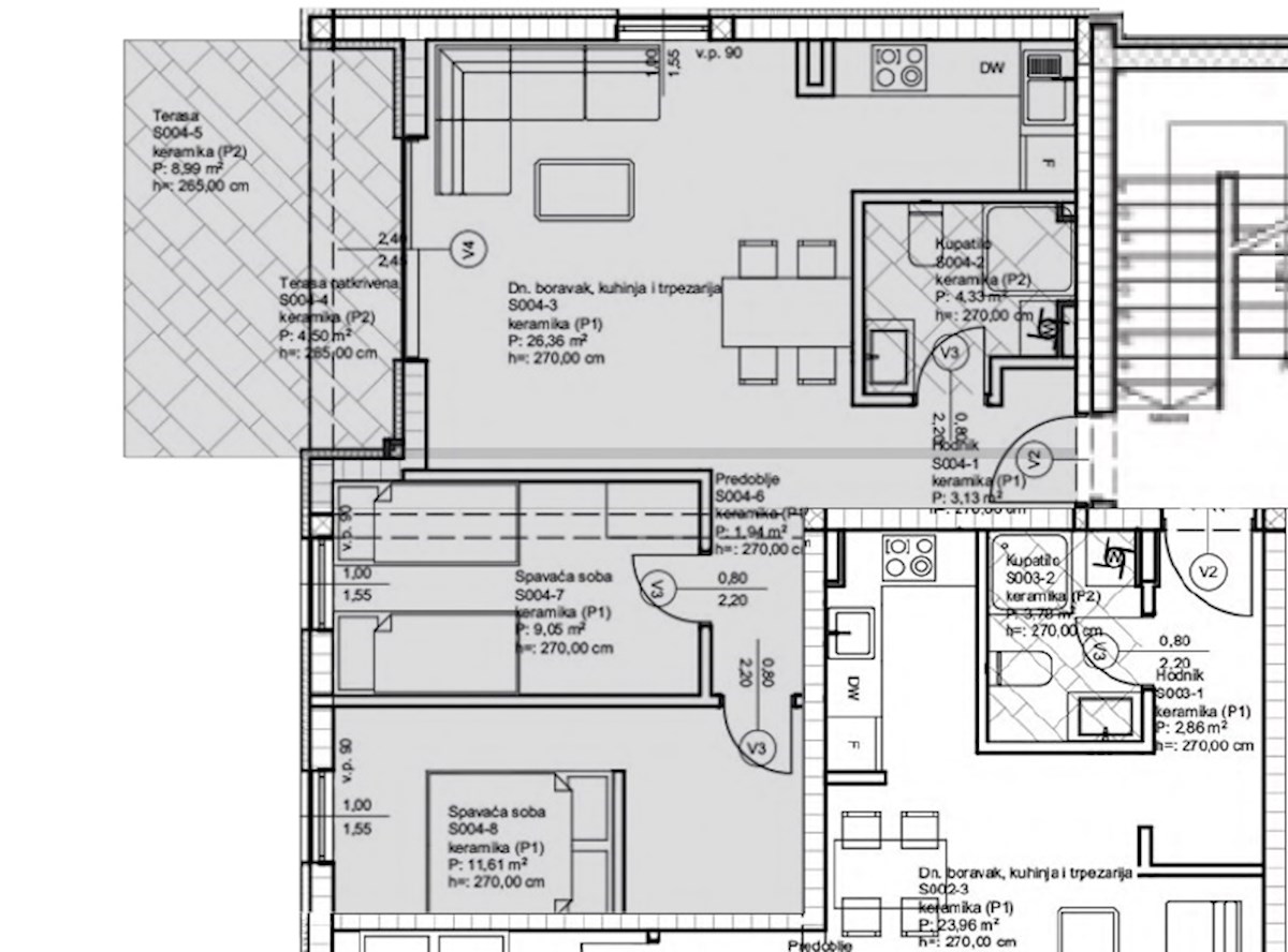
Wir verkaufen eine Gartenwohnung (S104) im Erdgeschoss eines Neubaus in Privlaka bei Zadar. Die Wohnung ist nach Süden ausgerichtet.

Das Gebäude liegt 120 Meter vom Meer und Strand entfernt und verfügt über einen Gemeinschaftspool. Zu jeder Wohnung gehört ein Außenstellplatz.

Die Wohnung S104 im Erdgeschoss des Gebäudes A (Südwestausrichtung) besteht aus: 2 Schlafzimmern, Flur, Badezimmer, Wohnzimmer mit Küche, Terrasse und Garten.

Wohnflächen:
- Wohnfläche: 54,48 m²
- Außenbereiche:
Terrasse 1: 4,5 m²
Terrasse 2: 8,99 m²
Garten: 116,98 m²
Stellplatz: 12,5 m²

Gesamtfläche: 197,45 m² Nutzfläche: 74,90 m²

Alle Wohnungen verfügen über:
- Intelligente Inverter-Klimaanlage (Heizen und Kühlen)
- Fußbodenheizung in den Badezimmern
- Hochwertige Innenausstattung mit rahmenlosen Fenstern in modernem Design
- Moderne 6-Kammer-PVC-Außenfenster mit dreifach verglaster Isolierverglasung und Low-E-Beschichtung von renommierten europäischen Herstellern
- Elektrisch betriebene Aluminium-Rollläden und integrierte Insektenschutzgitter
- Hochwertige Sanitärausstattung von renommierten EU-Herstellern
- Parkettboden und erstklassige Keramik
- Vorbereitung für Smart-Home-Installation
- Smart-Key-Karte für den Gebäudezugang
- Video-Gegensprechanlage
- Wärmeschutzheizung Fassade

Alle Bauelemente sind nach höchsten erdbebensicheren Standards (9 Erdbebenzonen) dimensioniert und werden entsprechend errichtet.

Die Gebäude befinden sich in einem ruhigen Teil von Privlaka direkt am Meer, in der Nähe aller Annehmlichkeiten des täglichen Lebens (Geschäfte, Cafés und Restaurants).
Privlaka ist ein malerischer Touristen- und Fischerort auf einer weitläufigen, flachen Halbinsel. Umgeben von kristallklarem Meer und traumhaften Stränden, liegt Privlaka zwischen den geschichtsträchtigen und kulturell reichen Städten Zadar und Nin und ist der westlichste Punkt Dalmatiens. Bekannt ist der Ort für seine wunderschönen Sonnenuntergänge über den Sandbuchten und seine lange Fischereitradition. Ideal für einen Familienurlaub, aber auch für Sportbegeisterte (Laufen, Radfahren, Inlineskaten, Surfen usw.).

Privlaka liegt:

20 km von Zadar entfernt

30 km vom Flughafen Zadar (ZAD) entfernt

40 km von der Autobahnausfahrt entfernt
Übersicht
  • Typ: Wohnung
  • Fläche: 75 m2
  • Grundstücksfläche: 117 m2
  • Zimmer: 2 Zimmer
  • Badezimmer: 1 Zimmer
  • Parkplätze: /
  • Parkplatz: /
  • Garage: /
  • Stockwerk: /
  • Immobilienansicht: /
  • Energieklasse: /
  • Anzahl der Aufrufe: /
Immobiliendetails
Typ
Wohnung
Fläche
75 m2
Grundstücksfläche
117 m2
Zimmer
2 Zimmer
Badezimmer
1 Zimmer
Parkplätze
/
Parkplatz
/
Garage
/
Stockwerk
/
Immobilienansicht
/
Energieklasse
/
Anzahl der Aufrufe
/
Kartenansicht
  • Ort
    PRIVLAKA
  • Region
    ZADARSKA
Agenturinfo
Nekretnine Larus
Verkäufer kontaktieren
Nekretnine Larus
Mate Pažanin
+
=