Malinska Doppelhaushälfte, Neubau! Malinska Doppelhaushälfte, Neubau!

490.000 €

Ausstattung
  • 110 m2
  • 4
  • 3
Lage

MALINSKA , KRK

Beschreibung
In Malinska auf der Insel Krk steht eine moderne Doppelhaushälfte im Bau zum Verkauf, mit geplanter Fertigstellung im Sommer 2027. Diese Immobilie auf Krk mit einer Gesamtwohnfläche von 110 m² erstreckt sich über zwei Etagen – Erdgeschoss und Obergeschoss.

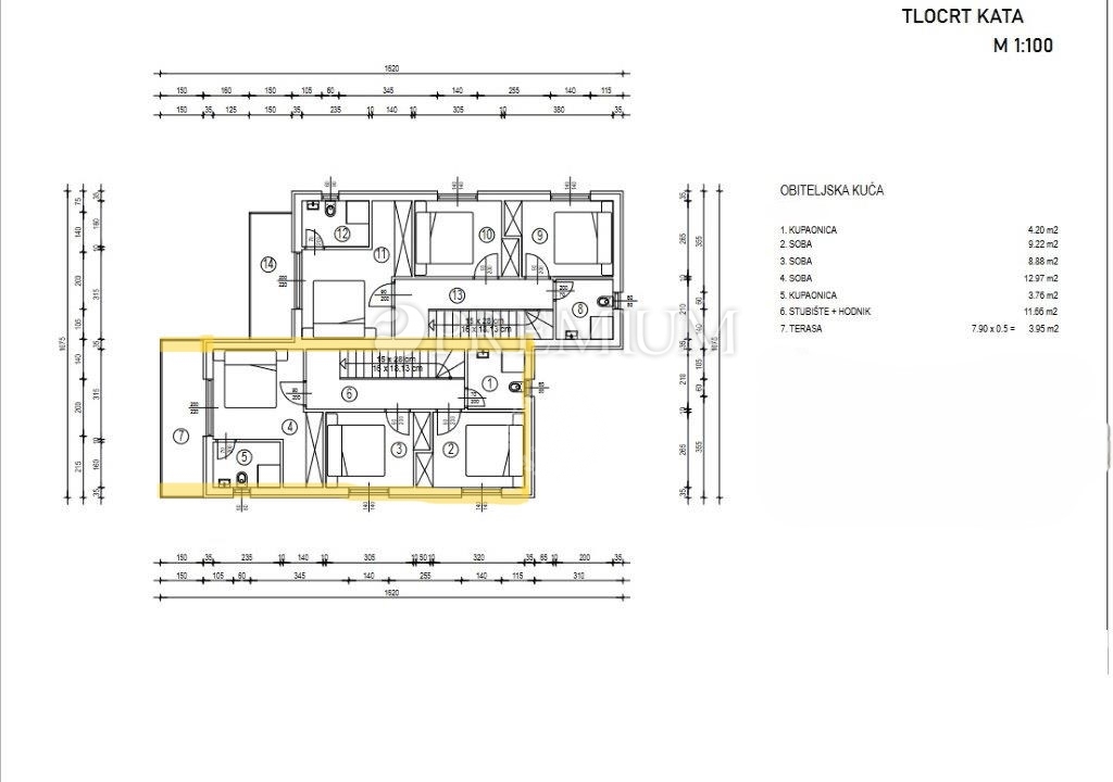
Im Obergeschoss befinden sich ein Flur, ein Badezimmer sowie drei Schlafzimmer, darunter ein Master-Schlafzimmer mit eigenem Badezimmer und Zugang zu einer Terrasse mit Meerblick.

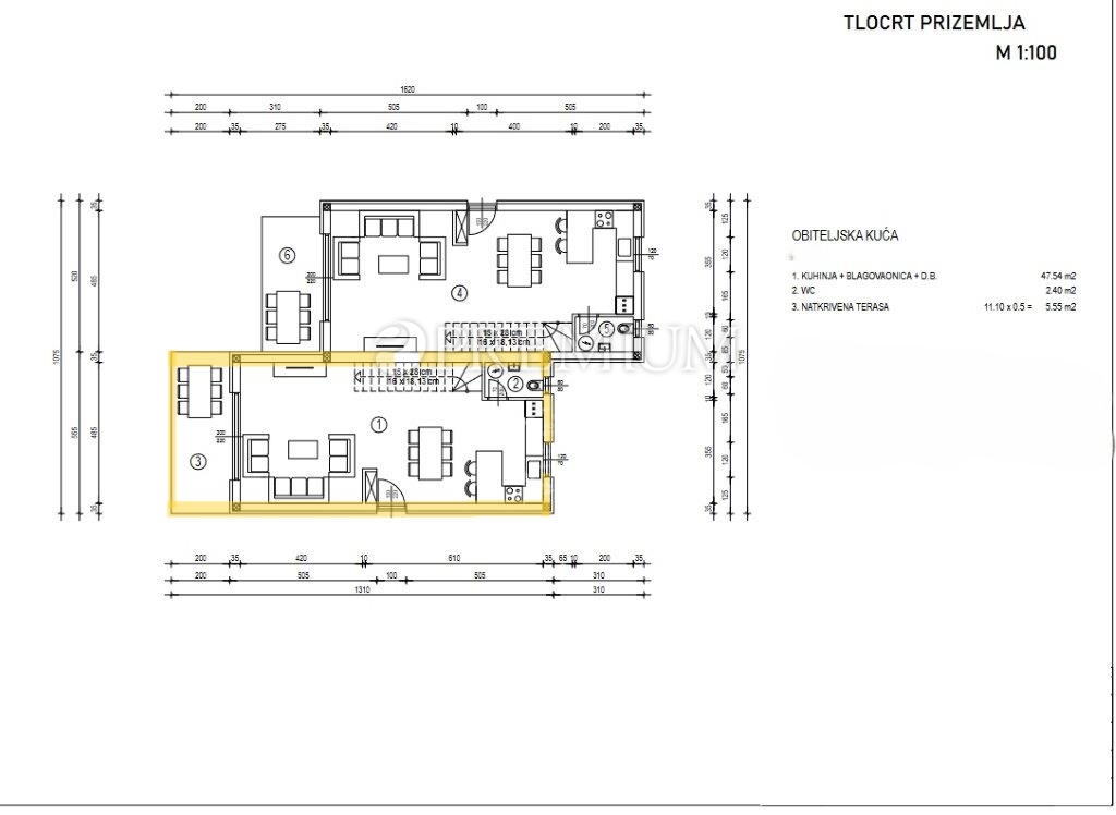
Eine Innentreppe verbindet das Obergeschoss mit dem Erdgeschoss, wo sich ein Eingangsbereich, ein Gäste-WC sowie ein großzügiger offener Wohnbereich mit Küche, Essbereich und Wohnzimmer befinden. Vom Wohnbereich aus gelangt man auf eine überdachte Terrasse und in den Garten, wo ein Pool mit Liegebereich vorgesehen ist.

Das Haus wird mit PVC-Fenstern, Klimaanlagen in allen Räumen sowie elektrischer Fußbodenheizung ausgestattet, was einen angenehmen Aufenthalt das ganze Jahr über ermöglicht. Das Projekt zeichnet sich durch modernes Design und eine funktionale Raumaufteilung aus.

Zur Immobilie gehören zwei Stellplätze. Die Entfernung zum Meer beträgt ca. 700 m, der Strand ist etwa 1 km entfernt.

Der Verkauf erfolgt schlüsselfertig.
Übersicht
  • Typ: Haus
  • Fläche: 110 m2
  • Grundstücksfläche: / m2
  • Zimmer: 4 Zimmer
  • Badezimmer: 3 Zimmer
  • Parkplätze: /
  • Parkplatz: /
  • Garage: /
  • Stockwerk: /
  • Immobilienansicht: aufs Meer
  • Energieklasse: /
  • Anzahl der Aufrufe: /
Immobiliendetails
Typ
Haus
Fläche
110 m2
Grundstücksfläche
/ m2
Zimmer
4 Zimmer
Badezimmer
3 Zimmer
Parkplätze
/
Parkplatz
/
Garage
/
Stockwerk
/
Immobilienansicht
aufs Meer
Energieklasse
/
Anzahl der Aufrufe
/
Kartenansicht
  • Ortsteil
    KRK
  • Ort
    MALINSKA
  • Region
    PRIMORSKO-GORANSKA
Agenturinfo
PREMIUM nekretnine
Verkäufer kontaktieren
PREMIUM nekretnine
Snježana Meštrović
+
=