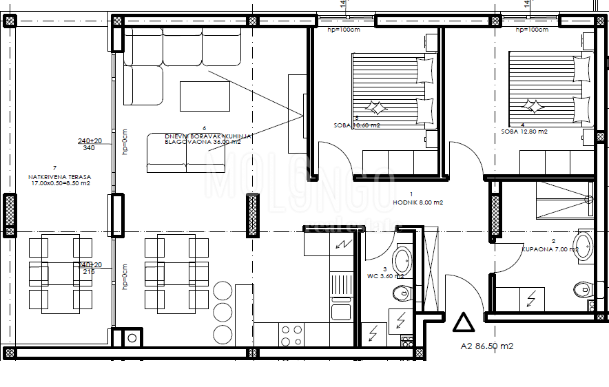
PULA – NOVOGRADNJA | Stan u prizemlju 86,50 m² | velika tera... PULA – NOVOGRADNJA | Stan u prizemlju 86,50 m² | velika terasa | garažno parkirno mjesto

233.550 €

Ausstattung
  • 86 m2
  • 3
  • 2
Lage

PULA

Beschreibung
PULA - NEUES GEBÄUDE | Wohnung im Erdgeschoss 86,50 m² | große Terrasse | Garagenstellplatz, A2

Wir bieten eine geräumige Wohnung in einem Neubau in Pula an, die sich im Erdgeschoss eines modernen Wohngebäudes befindet und eine Gesamtfläche von 86,50 m² hat. Das Projekt befindet sich derzeit im Bau und die Fertigstellung der Arbeiten ist für Oktober 2027 geplant.

Die Wohnung verfügt über eine funktionale und komfortable Aufteilung und besteht aus:

Eingangshalle
zwei Schlafzimmer
Badezimmer
zusätzliche Toilette
Küche mit Esszimmer
geräumiges Wohnzimmer
große Terrassen mit Ausgang vom Wohnzimmer

Der Verkauf der Wohnungen erfolgt nach dem „schlüsselfertigen“ System.

Der Erwerb eines Garagenstellplatzes zum Preis von 18.500 € ist mit der Wohnung zwingend erforderlich.

Es besteht auch die Möglichkeit, einen Lagerraum im Keller des Gebäudes zu erwerben (keine Kaufbedingung).

Die geplante Fertigstellung der Bauarbeiten ist 10/2027. Jahr.

Aufgrund seiner Fläche, der zusätzlichen Toilette und der großen Terrasse ist diese Wohnung eine ideale Immobilie für das Familienleben oder als Investition.
Übersicht
  • Typ: Wohnung
  • Fläche: 86 m2
  • Grundstücksfläche: / m2
  • Zimmer: 3 Zimmer
  • Badezimmer: 2 Zimmer
  • Parkplätze: /
  • Parkplatz: /
  • Garage: 1
  • Stockwerk: /
  • Immobilienansicht: /
  • Energieklasse: 1
  • Anzahl der Aufrufe: /
Immobiliendetails
Typ
Wohnung
Fläche
86 m2
Grundstücksfläche
/ m2
Zimmer
3 Zimmer
Badezimmer
2 Zimmer
Parkplätze
/
Parkplatz
/
Garage
1
Stockwerk
/
Immobilienansicht
/
Energieklasse
1
Anzahl der Aufrufe
/
Kartenansicht
  • Ort
    PULA
  • Region
    ISTARSKA
Agenturinfo
Molo Longo
Verkäufer kontaktieren
+
=