Pula Umgebung, Baugrundstück mit Projekt, Toplage Pula Umgebung, Baugrundstück mit Projekt, Toplage

120.000 €

Ausstattung
  • 560 m2
Lage

PULA

Beschreibung
In ruhiger und gefragter Lage im Raum Pula steht ein 559 m² großes Baugrundstück zum Verkauf – regelmäßig geschnitten, eben und mit fertig ausgearbeitetem Projekt für ein modernes Einfamilienhaus mit Pool. Die Nähe zum Meer sowie die sehr gute Anbindung machen diese Immobilie besonders attraktiv: Fažana, Štinjan und Pula liegen nur ca. 3 km entfernt, zudem befinden sich die wichtigsten Infrastrukturen und Anschlüsse in unmittelbarer Nähe, was die Umsetzung des Bauvorhabens deutlich erleichtert.

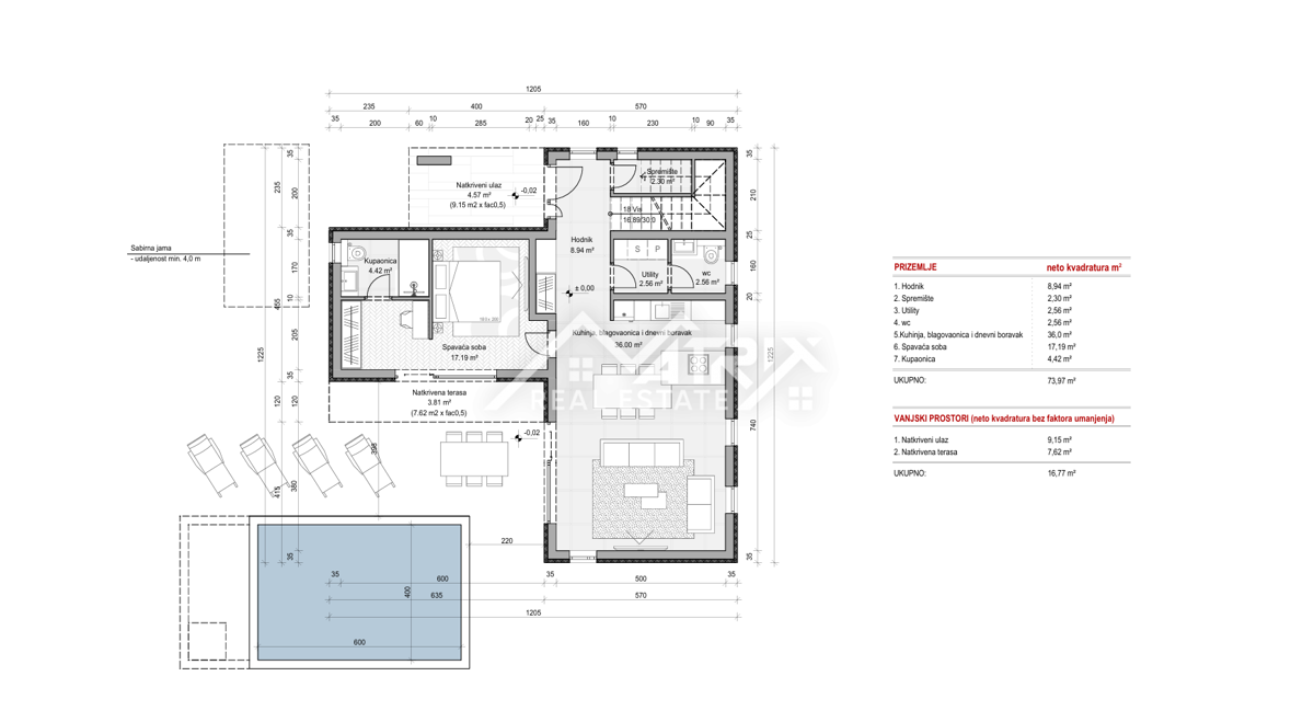
Geplant ist ein Haus auf zwei Etagen mit insgesamt 131,66 m² Nettonutzfläche – ideal für ganzjähriges Wohnen oder hochwertigen Ferienvermietungsstandard. Im Erdgeschoss sind ein großzügiger Wohn-/Essbereich mit Küche (36,00 m²), Flur (8,94 m²), Abstellraum (2,30 m²), Hauswirtschaft/Utility (2,56 m²), separates WC (2,56 m²), ein Schlafzimmer (17,19 m²) sowie ein Bad (4,42 m²) vorgesehen. Der Wohnbereich öffnet sich Richtung Außenbereich mit überdachter Terrasse und Poolzone.

Im Obergeschoss befinden sich Flur und Treppe (14,00 m²), zwei Schlafzimmer (18,51 m² und 15,90 m²) sowie zwei Bäder (4,42 m² und 4,86 m²). Zusätzlichen Mehrwert bieten zwei Loggien und eine nicht überdachte Terrasse. Die Außenflächen betragen insgesamt 43,18 m² (überdachter Eingangsbereich und Terrasse im Erdgeschoss sowie Loggien und Terrasse im Obergeschoss). Laut Situation ist zudem ein Pool von ca. 6 x 4 m vorgesehen – perfekt für Familie und Vermietung.

Eine hervorragende Gelegenheit für alle, die ein Baugrundstück bei Pula in Meeresnähe mit Haus- und Poolprojekt in Toplage Istriens suchen.
Übersicht
  • Typ: Grundstück
  • Fläche: 560 m2
  • Grundstücksfläche: / m2
  • Zimmer: / Zimmer
  • Badezimmer: / Zimmer
  • Parkplätze: /
  • Parkplatz: /
  • Garage: /
  • Stockwerk: /
  • Immobilienansicht: /
  • Energieklasse: /
  • Anzahl der Aufrufe: /
Immobiliendetails
Typ
Grundstück
Fläche
560 m2
Grundstücksfläche
/ m2
Zimmer
/ Zimmer
Badezimmer
/ Zimmer
Parkplätze
/
Parkplatz
/
Garage
/
Stockwerk
/
Immobilienansicht
/
Energieklasse
/
Anzahl der Aufrufe
/
Kartenansicht
  • Ort
    PULA
  • Region
    ISTARSKA
Agenturinfo
Matrix Real Estate
Verkäufer kontaktieren
+
=