ISTRIA, ROVINJ – Freistehende, exklusive Villa, Neubau mit S... ISTRIA, ROVINJ – Freistehende, exklusive Villa, Neubau mit Swimmingpool

1.295.000 €

Ausstattung
  • 394 m2
  • 5
  • 10
Lage

ROVINJ

Beschreibung
Istrien, Rovinj – Freistehende, exklusive Villa, Neubau mit Pool

Einmalige Gelegenheit!

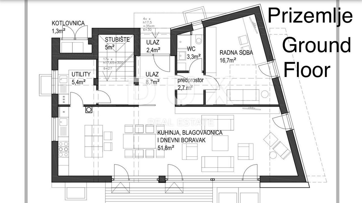
Diese freistehende, exklusive Villa erstreckt sich über drei oberirdische Etagen und ein Untergeschoss mit einer Gesamtwohnfläche von 394 m². Hinzu kommt ein 376 m² großer Garten mit einem beheizten Swimmingpool (10 x 3 m bzw. 30 m²).

- Das Untergeschoss umfasst: Heizraum, Zimmer, Abstellräume, eine große Taverne mit Kamin, Badezimmer, Treppenhaus und Flur.

- Das Erdgeschoss umfasst: Flur, Wohnzimmer mit Kamin, Küche, Speisekammer, Zimmer, Badezimmer und Treppenhaus.

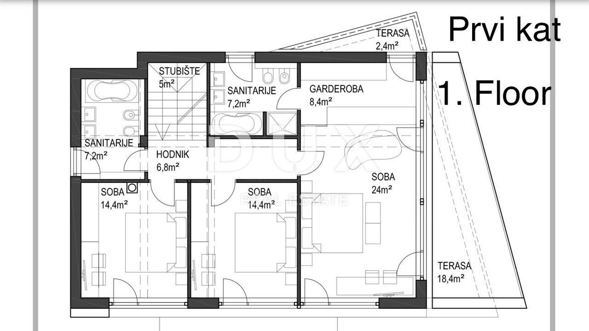
- Das Obergeschoss umfasst: Flur, drei Schlafzimmer, darunter ein Hauptschlafzimmer mit Ankleidezimmer, Badezimmer und Terrasse, Badezimmer und Treppenhaus.

- Im zweiten Obergeschoss des Hauses befinden sich: Treppenhaus, ein Entspannungsbereich mit Whirlpool, Duschkabine und WC sowie eine wunderschöne, 90 m² große Terrasse mit Panoramablick. Der Entspannungsbereich lädt ganzjährig zum Verweilen im Whirlpool ein.

- Schwimmbad: Beheizter Pool mit den Maßen 10 x 3 m (30 m²).

Alle Räume verfügen über Fußbodenheizung, eingebaute Gebläsekonvektoren zum Heizen und Kühlen. In den Badezimmern und im Treppenhaus befinden sich zusätzlich Heizkörper.

Die gesamte Schreinerarbeit im Gebäude besteht aus Aluminium von Schuco mit Roltek-Einbauschränken, elektrischen Jalousien und Glaszäunen.

Elektrische Installationen: KNX-System

Heizung/Kühlung:
• Gasheizraum
• Fußbodenheizung in allen Räumen
• Klimaanlage: Ja
• Kraft-Wärme-Kopplung
• Wärmepumpen
• Solaranlage

Versorgung:
• Stadtgas
• Stadtwasser
• Städtische Abwasserentsorgung

Genehmigungen:
• Baugenehmigung
• Grundbuchauszug
• Nutzungsgenehmigung
• Energieausweis A+

Garten:
• Swimmingpool, 30 m², Maße 10 x 3 m
• Terrasse mit Grill

Technik:
• Alarmanlage
• Videoüberwachung
• Gegensprechanlage
• KNX

Diese Immobilie liegt nur ca. 2,08 km Luftlinie vom Meer entfernt!

EINZIGARTIGE IMMOBILIE IN AUSGEZEICHNETER UND EINZIGARTIGER LAGE MIT GROSSEM POTENZIAL!!!

Ein ideales Zuhause für Familien, aber auch als Investition im Tourismussektor bestens geeignet.

Rovinj (italienisch: Rovigno, offiziell Rovinj-Rovigno) ist eine Stadt im Westen Kroatiens. Sie liegt an der Westküste Istriens und bildet zusammen mit Poreč das touristische Zentrum Istriens. Rovinj zählt zu den attraktivsten Reisezielen an der Adria. Das Stadtgebiet von Rovinj grenzt an die Gemeinden Bale, Kanfanar, Sv. Lovreč und Vrsar.

Die Stadt Rovinj-Rovigno liegt auf 45° 04' nördlicher Breite und 13° 38' östlicher Länge. Die Region Rovinj (Rovinjština) umfasst 80 km².

Das Klima in Rovinj ist mediterran. Die durchschnittliche Jahrestemperatur beträgt 16 °C. Die Durchschnittstemperatur im Januar liegt bei 4,8 °C und im Juli bei 22,3 °C. Die Vegetation ist subtropisch. In Rovinj fallen jährlich 940 mm Niederschlag, die durchschnittliche Luftfeuchtigkeit beträgt 72 %.

Rovinj liegt in der Region des Roten Istriens (Crljenica). Zum Rovinj-Archipel gehören 22 Inseln und Inselchen, darunter die größten Sv. Andrija und Sv. Katarina sowie Bili Školj. Im Norden grenzt Rovinj an die Gemeinde Vrsar, mit der es sich die Bucht Limski Kanal teilt, und im Süden an die Gemeinde Bale.

Sehr geehrte Kunden, die Vermittlungsgebühr richtet sich nach den Allgemeinen Geschäftsbedingungen.

www.dux-nekretnine.hr/opci-uvjeti-poslovanja
Übersicht
  • Typ: Haus
  • Fläche: 394 m2
  • Grundstücksfläche: 376 m2
  • Zimmer: 5 Zimmer
  • Badezimmer: 10 Zimmer
  • Parkplätze: /
  • Parkplatz: /
  • Garage: /
  • Stockwerk: /
  • Immobilienansicht: /
  • Energieklasse: 1
  • Anzahl der Aufrufe: /
Immobiliendetails
Typ
Haus
Fläche
394 m2
Grundstücksfläche
376 m2
Zimmer
5 Zimmer
Badezimmer
10 Zimmer
Parkplätze
/
Parkplatz
/
Garage
/
Stockwerk
/
Immobilienansicht
/
Energieklasse
1
Anzahl der Aufrufe
/
Kartenansicht
  • Ort
    ROVINJ
  • Region
    ISTARSKA
Agenturinfo
DUX Nekretnine
Verkäufer kontaktieren
DUX Nekretnine
Tony Jerković
+
=