Wohnung Sukošan, 91,95m2 Wohnung Sukošan, 91,95m2

240.000 €

Ausstattung
  • 72 m2
  • 3
  • 2
Lage

SUKOŠAN

Beschreibung
Kaiser Immobilien präsentiert: Moderne 3-Zimmer-Erdgeschosswohnung, 150 m vom Meer entfernt – Sukošan, Zadar
In Sukošan, einer der begehrtesten Lagen der Riviera von Zadar, bekannt für kristallklares Wasser und Wassersport, befindet sich diese funktionale und geräumige Erdgeschosswohnung eines Neubaus. Die Wohnung liegt in exzellenter Lage, nur 150 Meter vom Strand entfernt, und bietet die perfekte Balance zwischen Privatsphäre und der Nähe zu allen Annehmlichkeiten.

ÜBER DIE WOHNUNG:
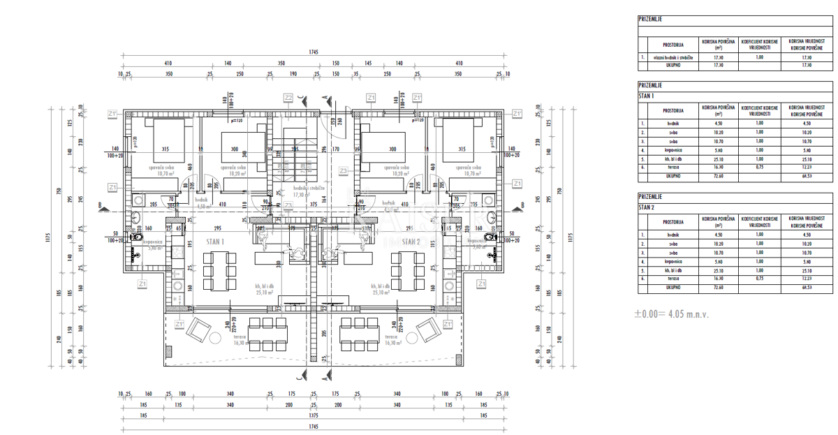
Die Wohnung mit der Bezeichnung Stan 1 befindet sich im Erdgeschoss des Gebäudes, was einen barrierefreien Zugang und eine optimale Raumausnutzung gewährleistet. Die Gesamtnutzfläche der Wohnung beträgt 100,85 m², die Nettonutzfläche inklusive Nebenkosten 91,95 m².

Detaillierte Raumaufteilung:
Die Wohnung ist hervorragend gestaltet und bietet eine klare Trennung von Wohn- und Schlafbereich:
Wohnbereich (offener Raum): Ein großzügiger Raum mit 28,20 m², der Küche, Essbereich und Wohnzimmer vereint. Das Wohnzimmer öffnet sich durch eine große Glaswand zur Terrasse.

Schlafzimmer:
Hauptschlafzimmer: 12,00 m²
Zweites Schlafzimmer: 10,40 m²
Drittes Schlafzimmer: 10,30 m²
Badezimmer: Die Wohnung verfügt über zwei geräumige Badezimmer (5,60 m² und 5,90 m²), was ein großer Vorteil für Familien oder die touristische Vermietung ist.
Flur: Ein funktionaler Flur von 10,65 m² verbindet alle Räume, ohne dass Nutzfläche verloren geht.
Terrasse: Eine überdachte Terrasse von 17,80 m², ideal zum Genießen von Sommerabenden und zum Essen im Freien. LAGE UND VORTEILE:
Meeresnähe: Nur 150 Meter vom Meer entfernt, bietet die Wohnung bequemen Strandzugang ohne Auto.
Erdgeschoss: Ideal für Familien mit Kindern oder Personen, die Treppen vermeiden möchten.
Sukošan: Ein Ort mit erstklassiger Infrastruktur, zahlreichen Restaurants, in der Nähe des Flughafens Zadar (10 Minuten) und mit hervorragender Autobahnanbindung.
Diese Wohnung bietet eine ausgezeichnete Investitionsmöglichkeit im Bereich der touristischen Vermietung mit hohem Renditepotenzial, aber auch als luxuriöses Zuhause in ruhiger mediterraner Umgebung.

Die Käufermaklerprovision beträgt 3 % zzgl. MwSt. und wird beim Kauf der Immobilie mit Abschluss des ersten Rechtsakts fällig. Besichtigungen sind nach vorheriger Absprache möglich.

Wenn Sie diese Gelegenheit nutzen und Eigentümer dieser Immobilie im Herzen Dalmatiens werden möchten, kontaktieren Sie uns.
Übersicht
  • Typ: Wohnung
  • Fläche: 72 m2
  • Grundstücksfläche: / m2
  • Zimmer: 3 Zimmer
  • Badezimmer: 2 Zimmer
  • Parkplätze: /
  • Parkplatz: /
  • Garage: /
  • Stockwerk: /
  • Immobilienansicht: /
  • Energieklasse: 1
  • Anzahl der Aufrufe: /
Immobiliendetails
Typ
Wohnung
Fläche
72 m2
Grundstücksfläche
/ m2
Zimmer
3 Zimmer
Badezimmer
2 Zimmer
Parkplätze
/
Parkplatz
/
Garage
/
Stockwerk
/
Immobilienansicht
/
Energieklasse
1
Anzahl der Aufrufe
/
Kartenansicht
  • Ort
    SUKOŠAN
  • Region
    ZADARSKA
Agenturinfo
Kaiser Immobilien
Verkäufer kontaktieren
+
=

Ähnliche Immobilien