Wohnungen zum Verkauf in einem neuen Wohnprojekt in exklusiv... Wohnungen zum Verkauf in einem neuen Wohnprojekt in exklusiver Lage, 300 m vom Meer entfernt, Pula, Veruda!

248.000 €

Ausstattung
  • 57 m2
  • 2
  • 1
Lage

PULA

Beschreibung
Neues Wohnprojekt in exklusiver Lage, Pula, Veruda!

Das Sisplac-Projekt befindet sich an einem der besten Standorte in Pula. Aufgrund der Sport- und Freizeiteinrichtungen in der Umgebung, der Nähe zum Veruda-Markt, den angelegten Parks und allen natürlichen Vorzügen, attraktiven Stränden, dem Meer und der beliebtesten Promenade der Stadt Lungomare eignet sich dieser Standort perfekt zum Wohnen.

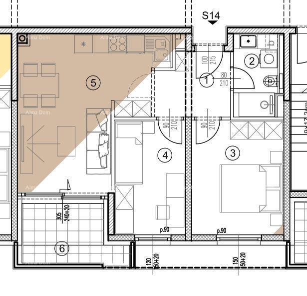
Wohnung S14, im 1. Stock des Gebäudes gelegen, Fläche 57,57 m2 (54.982).

Die Wohnung besteht aus einem Flur, einem Wohnzimmer mit Küche und Esszimmer, 2 Schlafzimmern, einem Badezimmer und einem Balkon.

Die Böden in den Zimmern sind mit Parkett ausgelegt, in den anderen Räumen mit Keramikfliesen. Das Gebäude verfügt über einen Aufzug und eine Tiefgarage.

* Hinweis: Zur Wohnung gehört ein Garagenstellplatz gegen Aufpreis zum Preis von 20.000 Euro.

Für weitere Informationen kontaktieren Sie bitte:

Azra
+385 91 611 5706
+385 98 420 885
azra@almadominvest.com
Übersicht
  • Typ: Wohnung
  • Fläche: 57 m2
  • Grundstücksfläche: / m2
  • Zimmer: 2 Zimmer
  • Badezimmer: 1 Zimmer
  • Parkplätze: /
  • Parkplatz: /
  • Garage: /
  • Stockwerk: 1
  • Immobilienansicht: /
  • Energieklasse: 1
  • Anzahl der Aufrufe: /
Immobiliendetails
Typ
Wohnung
Fläche
57 m2
Grundstücksfläche
/ m2
Zimmer
2 Zimmer
Badezimmer
1 Zimmer
Parkplätze
/
Parkplatz
/
Garage
/
Stockwerk
1
Immobilienansicht
/
Energieklasse
1
Anzahl der Aufrufe
/
Kartenansicht
  • Ort
    PULA
  • Region
    ISTARSKA
Agenturinfo
Alma Dom - Real Estate
Verkäufer kontaktieren
Alma Dom - Real Estate
Alma Valjevac
+
=