Vrbnik – Neubauwohnung mit Pool und Garten! Vrbnik – Neubauwohnung mit Pool und Garten!

590.000 €

Ausstattung
  • 100 m2
  • 3
  • 2
Lage

VRBNIK , KRK

Beschreibung
Vrbnik, Insel Krk, Neubau – Wohnung zum Verkauf im Erdgeschoss einer Stadtvilla mit Meerblick und Garten.

Die Wohnung befindet sich im Erdgeschoss einer modernen Neubau-Stadtvilla mit insgesamt drei Wohneinheiten, gelegen in Vrbnik auf der Insel Krk. Die Luftlinie zum Meer beträgt etwa 400 m.

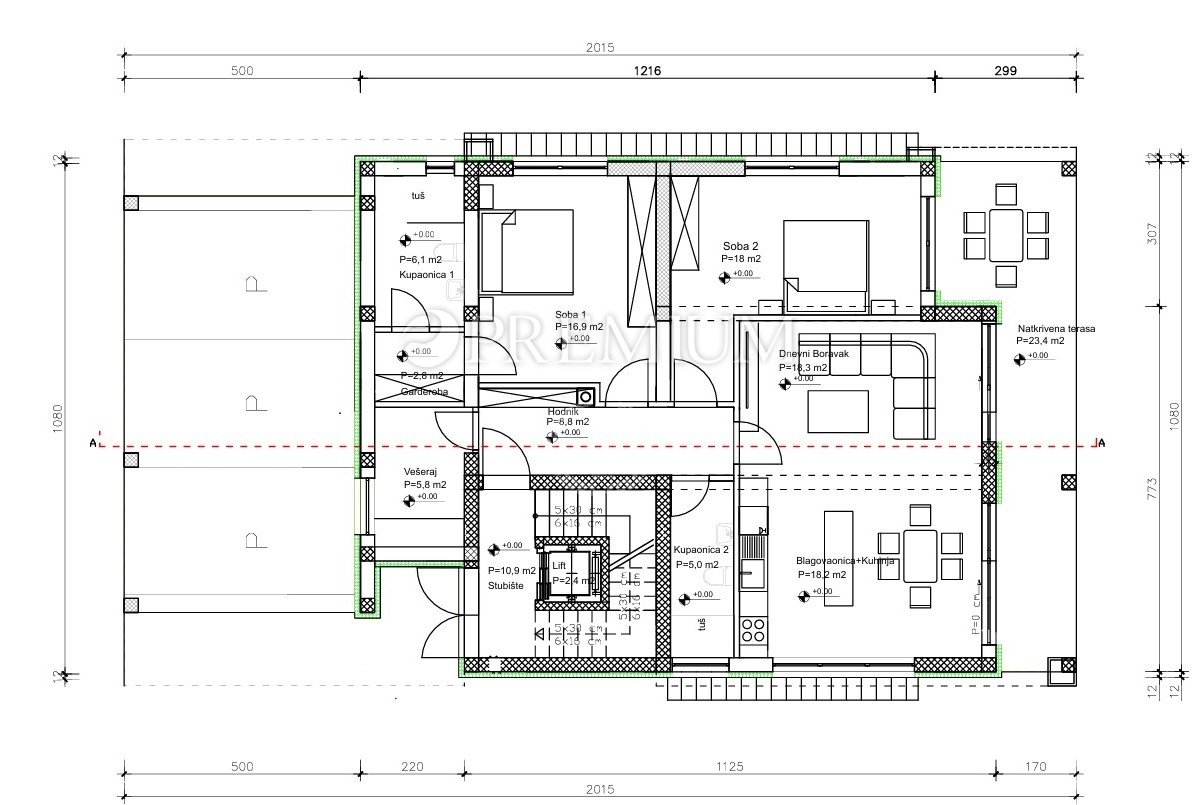
Die Nettofläche der Wohnung beträgt 100 m². Die Raumaufteilung umfasst Eingangsbereich, Hauswirtschaftsraum, zwei Badezimmer, Garderobe, zwei Schlafzimmer, Küche mit Essbereich sowie ein Wohnzimmer mit Zugang zu einer überdachten Terrasse. Zur Wohnung gehört außerdem ein Abstellraum im Untergeschoss mit einer Fläche von 10 m².

Zur Wohnung gehört auch ein Garten von ca. 200 m², der schön angelegt wird und über einen Swimmingpool mit Sonnenterrasse verfügen wird.

Die Immobilie zeichnet sich durch ein modernes und funktionales Baukonzept sowie hochwertige Ausstattung aus, darunter Fußbodenheizung über Wärmepumpe, Klimaanlage in allen Räumen, Aluminiumfenster sowie Sicherheitseingangstüren. Von der Terrasse und dem Garten bietet sich Meerblick.

Zur Wohnung gehören zwei Stellplätze.

Die Fertigstellung der Bauarbeiten ist für Juni 2026 vorgesehen.
Die Mehrwertsteuer ist im Preis enthalten, daher zahlt der Käufer keine Immobilienerwerbsteuer.

Diese Wohnung in Vrbnik stellt eine ausgezeichnete Gelegenheit für Eigennutzung oder touristische Vermietung auf der Insel Krk dar.
Übersicht
  • Typ: Wohnung
  • Fläche: 100 m2
  • Grundstücksfläche: 200 m2
  • Zimmer: 3 Zimmer
  • Badezimmer: 2 Zimmer
  • Parkplätze: /
  • Parkplatz: /
  • Garage: /
  • Stockwerk: /
  • Immobilienansicht: aufs Meer
  • Energieklasse: /
  • Anzahl der Aufrufe: /
Immobiliendetails
Typ
Wohnung
Fläche
100 m2
Grundstücksfläche
200 m2
Zimmer
3 Zimmer
Badezimmer
2 Zimmer
Parkplätze
/
Parkplatz
/
Garage
/
Stockwerk
/
Immobilienansicht
aufs Meer
Energieklasse
/
Anzahl der Aufrufe
/
Kartenansicht
  • Ortsteil
    KRK
  • Ort
    VRBNIK
  • Region
    PRIMORSKO-GORANSKA
Agenturinfo
PREMIUM nekretnine
Verkäufer kontaktieren
PREMIUM nekretnine
Snježana Meštrović
+
=