Trogir, Slatine, Neubau-65m²-Meerblickwohnung zum Verkauf Trogir, Slatine, Neubau-65m²-Meerblickwohnung zum Verkauf

265.000 €

Ausstattung
  • 62 m2
  • 3
  • 1
Lage

SLATINE , SPLIT

Beschreibung
Neubauwohnung zum Verkauf in schöner Lage mit Meerblick

Eine Neubauwohnung steht in attraktiver Lage mit wunderschönem Meerblick zum Verkauf.
Im Preis jeder Wohnung sind ein überdachter Parkplatz sowie eine einjährige Wohngebäudeversicherung (gegen Überschwemmung, Feuer, Einbruch usw.) bereits inkludiert.

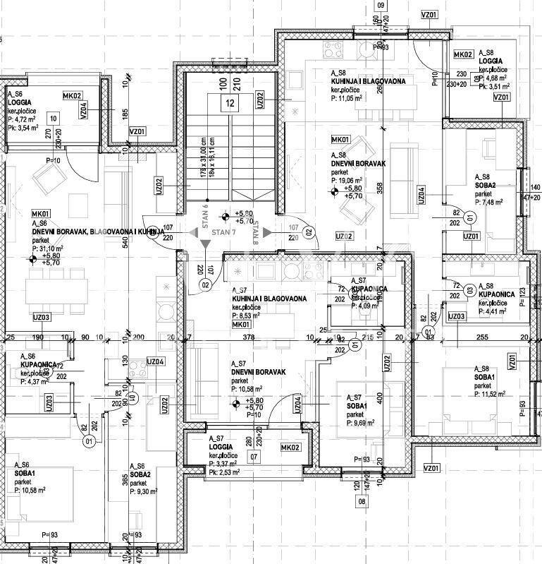
Durchdachter Grundriss
Wohnzimmer + Küche: 29,74 m²
Hauptschlafzimmer: 11,26 m²
Schlafzimmer: 7,5 m²
Badezimmer: 4,4 m²
Loggia: 5 m²

Luxuriöse Wohnung mit Meerblick – Neubau in ausgezeichneter Lage

In einem ruhigen und attraktiven Teil des Ortes, nur 70 Meter vom Strand entfernt, befindet sich diese modern konzipierte Wohnung, die Eleganz, Komfort und Funktionalität ideal verbindet.

Dank des sorgfältig geplanten Grundrisses wirkt die Wohnung hell und großzügig, während die Nähe zu Geschäften und wichtigen Einrichtungen den Alltag besonders praktisch gestaltet.
Im Preis enthalten sind ein überdachter Parkplatz sowie eine einjährige Wohngebäudeversicherung (gegen Überschwemmung, Feuer, Einbruch usw.) als zusätzlicher Wert und Sicherheit.

Hochwertig gestaltetes Interieur

Der Wohnbereich umfasst ein geräumiges Wohnzimmer mit offener Küche mit insgesamt 29,74 m², ideal zum Entspannen und für gesellige Momente.
Zwei komfortable Schlafzimmer – ein 11,26 m² großes Hauptschlafzimmer und ein weiteres 7,5 m² großes Schlafzimmer – bieten angenehmen Wohnkomfort und Privatsphäre.
Das elegante 4,4 m² große Badezimmer ist modern ausgestattet, während die 5 m² große Loggia einen schönen Außenbereich mit herrlichem Meerblick bietet.

Lebensqualität zum Greifen nah

Diese Wohnung ist eine hervorragende Gelegenheit für alle, die in Meeresnähe wohnen möchten und gleichzeitig den Komfort eines hochwertigen Neubaus genießen wollen.
Der Strand befindet sich fast direkt vor der Haustür, und alle wichtigen Einrichtungen sind in unmittelbarer Nähe – ideal für das ganzjährige Wohnen oder eine touristische Investition.

Für weitere Informationen und Besichtigungen stehen wir Ihnen gerne zur Verfügung.

Bei Vermittlung durch unsere Agentur fällt eine Maklerprovision an.

Kontaktperson für diese Immobilie: Matej +385 91 288 0083
Übersicht
  • Typ: Wohnung
  • Fläche: 62 m2
  • Grundstücksfläche: 72 m2
  • Zimmer: 3 Zimmer
  • Badezimmer: 1 Zimmer
  • Parkplätze: /
  • Parkplatz: /
  • Garage: /
  • Stockwerk: 2
  • Immobilienansicht: /
  • Energieklasse: /
  • Anzahl der Aufrufe: /
Immobiliendetails
Typ
Wohnung
Fläche
62 m2
Grundstücksfläche
72 m2
Zimmer
3 Zimmer
Badezimmer
1 Zimmer
Parkplätze
/
Parkplatz
/
Garage
/
Stockwerk
2
Immobilienansicht
/
Energieklasse
/
Anzahl der Aufrufe
/
Kartenansicht
  • Ortsteil
    SPLIT
  • Ort
    SLATINE
  • Region
    SPLITSKO-DALMATINSKA
Agenturinfo
LUVA Real Estate
Verkäufer kontaktieren
+
=