Vodice, luxuriöses Penthouse mit Panoramablick aufs Meer Vodice, luxuriöses Penthouse mit Panoramablick aufs Meer

459.270 €

Ausstattung
  • 102 m2
  • 3
  • 2
Lage

VODICE

Beschreibung
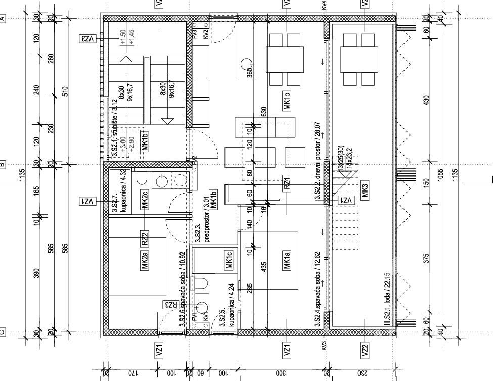
Zum Verkauf steht ein exklusives Penthouse in einer modernen Neubauimmobilie, die sich derzeit im Bau befindet. Die Fertigstellung sowie der Einzug sind für vor dem Sommer 2027 geplant. Die Immobilie bietet höchsten Wohnkomfort, Privatsphäre und zeitgemäßes Design.

Das Penthouse befindet sich auf der dritten Etage des Gebäudes. Die geschlossene Wohnfläche von 67,97 m2 umfasst einen offenen Wohn-, Ess- und Küchenbereich mit Zugang zu einer Loggia von 22,15 m2 mit Meerblick. Die Wohnung verfügt über zwei Schlafzimmer, eines davon mit eigenem Bad, sowie ein zusätzliches Badezimmer. Ein Schlafzimmer hat direkten Zugang zur Loggia.

Ein besonderes Highlight ist die private Dachterrasse mit 40,45 m2, von der sich ein spektakulärer Panoramablick auf Vodice, das Meer und die umliegenden Inseln bietet – perfekt für entspannte Stunden im Freien.

Das Penthouse wird mit hochwertigen Materialien und erstklassiger Ausstattung ausgeführt, mit Fokus auf Qualität, Langlebigkeit und modernes Wohnen. Zur Immobilie gehören zwei Parkplätze.

Im Kaufpreis ist die Mehrwertsteuer enthalten, der Käufer ist von der 3%igen Immobilienerwerbssteuer befreit.

Vodice zählen zu den begehrtesten Orten an der Adria und bieten eine ideale Kombination aus mediterranem Flair, modernen Annehmlichkeiten und hoher Lebensqualität.

Für weitere Informationen oder einen Besichtigungstermin kontaktieren Sie uns gerne.
Hinweis: Im Inserat wurden Renderbilder verwendet.



Die Vermittlungsprovision beträgt 2 % zuzüglich Mehrwertsteuer des Kaufpreises.
Übersicht
  • Typ: Wohnung
  • Fläche: 102 m2
  • Grundstücksfläche: / m2
  • Zimmer: 3 Zimmer
  • Badezimmer: 2 Zimmer
  • Parkplätze: /
  • Parkplatz: 24
  • Garage: /
  • Stockwerk: 2
  • Immobilienansicht: aufs Meer
  • Energieklasse: /
  • Anzahl der Aufrufe: /
Immobiliendetails
Typ
Wohnung
Fläche
102 m2
Grundstücksfläche
/ m2
Zimmer
3 Zimmer
Badezimmer
2 Zimmer
Parkplätze
/
Parkplatz
24
Garage
/
Stockwerk
2
Immobilienansicht
aufs Meer
Energieklasse
/
Anzahl der Aufrufe
/
Kartenansicht
  • Ort
    VODICE
  • Region
    ŠIBENSKO-KNINSKA
Agenturinfo
Adriatic realty
Verkäufer kontaktieren
Adriatic realty
Danijela Ćopić
+
=