Šijana – moderne Wohnungen im Bau, 2 Schlafzimmer und Parkpl... Šijana – moderne Wohnungen im Bau, 2 Schlafzimmer und Parkplatz

199.000 €

Ausstattung
  • 60 m2
  • 2
  • 1
Lage

PULA

Beschreibung
In attraktiver und ruhiger Lage im Stadtteil Šijana in Pula stehen Wohnungen im Bau im zweiten Stock eines modern gestalteten Gebäudes innerhalb eines neuen Wohnkomplexes zum Verkauf.

Der Komplex besteht aus sechs kleineren Gebäuden mit insgesamt 24 Wohnungen, was eine angenehme, unaufdringliche Nachbarschaft und ein hohes Maß an Privatsphäre gewährleistet. Die Fertigstellung ist für das Frühjahr 2027 geplant, und das Projekt wird mit allen notwendigen Unterlagen und Energiezertifikaten durchgeführt.

Zwei Wohnungen im zweiten Stock desselben Gebäudes stehen zum Verkauf, jede mit einer Wohnfläche von 55 m² und zum gleichen Verkaufspreis. Die Wohnungen werden separat verkauft, jeweils zum im Inserat angegebenen Preis, und unterscheiden sich in der Aufteilung und den Erdgeschoss-Anlagen, sodass Käufer die Variante wählen können, die am besten zu ihren Bedürfnissen passt.

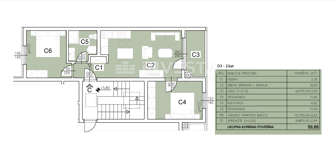
Die Wohnung E3 hat eine Gesamtfläche von 64,92 m². Sie besteht aus Flur, Wohnzimmer mit Küche und Essbereich im Open-Space-Konzept, zwei Schlafzimmern, Badezimmer und Loggia. Im Erdgeschoss gehören zwei Außenstellplätze und ein privater Abstellraum dazu.

Die Wohnung E4 hat eine Gesamtfläche von 60,12 m². Sie umfasst ebenfalls Flur, Wohnzimmer mit Küche und Essbereich, zwei Schlafzimmer, Badezimmer und Loggia. Im Erdgeschoss gehört ein Außenstellplatz und ein privater Abstellraum dazu.

Eine weitere Wohnung ist im Nachbargebäude verfügbar.

Die Wohnung F2 befindet sich im ersten Stock des Nachbargebäudes und hat eine Gesamtfläche von 60,05 m², davon 54,95 m² Wohnfläche. Sie besteht aus Flur, Wohnzimmer, Essbereich und Küche im Open-Space-Konzept mit Zugang zu einer überdachten Terrasse, Badezimmer und zwei Schlafzimmern. Im Erdgeschoss gehört ein Außenstellplatz und ein privater Abstellraum dazu.

Der Preis der Wohnung F2 entspricht dem der anderen Wohnungen im Inserat und wird separat verkauft.

Die Bau- und Ausstattungsqualität ist eines der Hauptmerkmale dieses Projekts. Vorgesehen sind eine wärmegedämmte Fassade mit hochwirksamer 10 cm Dämmung, einbruchsichere Eingangstüren und PVC-Fenster mit Doppelverglasung und Rollläden. In den Wohnungen wird hochwertige moderne Keramik verlegt, Loggien und Terrassen erhalten rutschfeste Fliesen.

Ganzjährige angenehme Temperaturen werden durch Klimaanlagen gewährleistet, zusätzlich gibt es elektrische Fußbodenheizung im Wohnzimmer, in der Küche und im Badezimmer. Die Badezimmer sind mit elektrischen Handtuchheizkörpern mit Thermostat ausgestattet.

Die Lage in Šijana bietet die ideale Kombination aus ruhigem Wohnen und der Nähe zu allen wichtigen Einrichtungen – Schulen, Geschäfte, öffentliche Verkehrsmittel und weitere tägliche Bedürfnisse.

Der Kauf ist über eine Hypothek in Zusammenarbeit mit einer Bank, mit der der Bauträger eine Vereinbarung hat, möglich, ebenso wie über Ratenzahlung während der Bauphasen. Die Eigentumsübertragung erfolgt nach Erhalt der Nutzungsgenehmigung und der Wohnungsaufteilung, und der Käufer ist von der 3%-igen Immobilienertragssteuer befreit.

Alle Wohnungen werden separat zu dem im Inserat angegebenen Preis verkauft, was den Käufern eine klare und transparente Wahl zwischen verschiedenen Konfigurationen innerhalb desselben Wohnkomplexes ermöglicht.

Für weitere Informationen oder zur Vereinbarung einer Besichtigung kontaktieren Sie uns bitte vertrauensvoll.
Übersicht
  • Typ: Wohnung
  • Fläche: 60 m2
  • Grundstücksfläche: / m2
  • Zimmer: 2 Zimmer
  • Badezimmer: 1 Zimmer
  • Parkplätze: /
  • Parkplatz: 1
  • Garage: /
  • Stockwerk: 2
  • Immobilienansicht: /
  • Energieklasse: /
  • Anzahl der Aufrufe: /
Immobiliendetails
Typ
Wohnung
Fläche
60 m2
Grundstücksfläche
/ m2
Zimmer
2 Zimmer
Badezimmer
1 Zimmer
Parkplätze
/
Parkplatz
1
Garage
/
Stockwerk
2
Immobilienansicht
/
Energieklasse
/
Anzahl der Aufrufe
/
Kartenansicht
  • Ort
    PULA
  • Region
    ISTARSKA
Agenturinfo
INVESTA Real Estate
Verkäufer kontaktieren
INVESTA Real Estate
Anais Naimarević Ramljak
+
=