INVESTITIONSMÖGLICHKEIT – MINI-HOTEL ODER APARTMENTS IN ZWEI... INVESTITIONSMÖGLICHKEIT – MINI-HOTEL ODER APARTMENTS IN ZWEITER REIHE ZUM MEER

1.299.000 €

Ausstattung
  • 799 m2
  • 13
Lage

TROGIR

Beschreibung
In Seget Vranjic (unweit von Trogir) steht eine touristische Immobilie in bester Lage zum Verkauf. Sie befindet sich in zweiter Reihe zum Meer, bietet einen unverbauten Panoramablick auf das Meer und verfügt über einen bestehenden Gastronomiebereich.

- EXKLUSIVverkauf durch die Agentur adriaINgroup (IMPACTO doo)

Die Immobilie eignet sich ideal für ein Mini-Hotel, ein Apartmenthaus oder ein touristisches Projekt mit Restaurant.

Das Haus befindet sich auf einem 792 m² großen Grundstück und besteht aus Untergeschoss, Hochparterre, erstem, zweitem und drittem Obergeschoss mit einer Wohnfläche von 798,99 m².

VIDEO DER IMMOBILIE: https://www.youtube.com/watch?v=PyyycLAGb1w

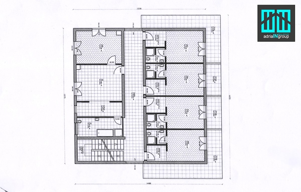
Aufteilung:

• Untergeschoss: 6 überdachte Parkplätze + 5 Außenstellplätze.

• Hochparterre: Gastronomiebereich (Restaurant) ca. 70 m² Wohnfläche + Küche, Abstellraum, Büro und WC + ca. 90 m² große Terrasse mit Meerblick.

• 1. Obergeschoss: 3 Apartments – ein Apartment mit zwei Schlafzimmern, ein Apartment mit einem Schlafzimmer und ein Studio-Apartment + Waschküche und Abstellraum
• 2. Obergeschoss: 5 Apartments – ein Apartment mit einem Schlafzimmer und vier Studios

• Dachgeschoss: 3 Apartments mit einem Schlafzimmer + Abstellraum

Die meisten Apartments bieten einen Panoramablick auf das Meer, was die Immobilie für die touristische Vermietung äußerst attraktiv macht.
Das Haus wurde 1987 erbaut und über die Jahre regelmäßig instand gehalten.

Kürzlich wurden eine komplett neue Klimaanlage und in weiten Teilen neue Fenster und Türen sowie Solarpaneele zur Warmwasserbereitung installiert.

Das Objekt eignet sich für touristische Zwecke – beispielsweise als Mini-Hotel, Apartmenthaus mit luxuriösen Zimmern oder zur Weiterführung des bestehenden Betriebs mit Apartments und Restaurant.

Die Immobilie bedarf einer Renovierung nach den Wünschen des Investors, ist aber baulich intakt, trocken und gut gepflegt, ohne Feuchtigkeitsschäden oder versteckte Mängel.

Detaillierte Bilder der Wohnung, zusätzliches Videomaterial und weitere Informationen senden wir Ihnen gerne auf Anfrage zu.

– Der Käufer zahlt eine Maklerprovision von 3 % des Verkaufspreises.

Sehr geehrte Kunden, eine Besichtigung der Immobilie ist nur mit einem unterzeichneten Maklervertrag möglich. Dieser bildet die Grundlage für alle weiteren Schritte im Zusammenhang mit dem Kauf und Verkauf, die alle dem Maklergesetz unterliegen. Die Maklerprovision ist mehrwertsteuerpflichtig, und auf alle Leistungen wird Mehrwertsteuer erhoben.

#adriaINgroup (IMPACTO d.o.o.)
Immobilien-Beratung-Design-Entwicklung-VIP-Service
.................................................................
Denis Hlapčić (Whats App/Facebook)
+385(0)98 927 9171
denis.crorealestate@gmail.com

Mirta Bakota Štefičić (Whats App/Viber)
+385(0)91 302 5555
mirta.crorealestate@gmail.com

www.adriaINgroup.com
www.croatia-LUX-realestate.com
www.dalmatia-LUX-realestate.com

Split / Dubrovnik / Inseln
Übersicht
  • Typ: Haus
  • Fläche: 799 m2
  • Grundstücksfläche: 792 m2
  • Zimmer: 13 Zimmer
  • Badezimmer: / Zimmer
  • Parkplätze: /
  • Parkplatz: /
  • Garage: 1
  • Stockwerk: /
  • Immobilienansicht: aufs Meer
  • Energieklasse: /
  • Anzahl der Aufrufe: /
Immobiliendetails
Typ
Haus
Fläche
799 m2
Grundstücksfläche
792 m2
Zimmer
13 Zimmer
Badezimmer
/ Zimmer
Parkplätze
/
Parkplatz
/
Garage
1
Stockwerk
/
Immobilienansicht
aufs Meer
Energieklasse
/
Anzahl der Aufrufe
/
Kartenansicht
  • Ort
    TROGIR
  • Region
    SPLITSKO-DALMATINSKA
Agenturinfo
adriaINgroup
Verkäufer kontaktieren
adriaINgroup
Denis Hlapcic
+
=