Brodarica – Zweizimmerwohnung im zweiten Stock mit Loggia, 1... Brodarica – Zweizimmerwohnung im zweiten Stock mit Loggia, 130 m vom Meer entfernt

330.000 €

Ausstattung
  • 86 m2
  • 3
  • 2
Lage

BRODARICA , ŠIBENIK

Beschreibung
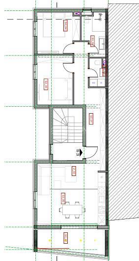
Im zweiten Stock eines modernen Neubaus in Brodarica befindet sich diese Zweizimmerwohnung, nur 130 Meter vom Meer entfernt. Die Wohnung besteht aus einem Eingangsbereich, einem Badezimmer, einem zusätzlichen Gäste-WC, zwei Schlafzimmern sowie einem Wohnbereich mit Küche und Esszimmer und Zugang zur Loggia. Zur Wohnung gehört ein Parkplatz. Die gesamte Nettofläche beträgt 98,53 m², die Nutzfläche 86,62 m².

Die Wohnung eignet sich sowohl für das Familienleben als auch als hochwertige Ferienimmobilie oder Investition zur touristischen Vermietung. Der funktionale Grundriss, die hochwertige Bauweise und die ruhige Lage sorgen für angenehmes Wohnen das ganze Jahr über. Die Fertigstellung und der Einzug sind für 2027 geplant.

Brodarica ist eine ruhige und sehr gefragte Wohngegend aufgrund der Nähe zum Meer, gepflegter Strände und eines entspannten mediterranen Ambientes. Geschäfte, Restaurants und alle notwendigen Einrichtungen befinden sich in der Nähe, während Šibenik nur wenige Autominuten entfernt ist.
Übersicht
  • Typ: Wohnung
  • Fläche: 86 m2
  • Grundstücksfläche: / m2
  • Zimmer: 3 Zimmer
  • Badezimmer: 2 Zimmer
  • Parkplätze: /
  • Parkplatz: /
  • Garage: /
  • Stockwerk: 2
  • Immobilienansicht: /
  • Energieklasse: /
  • Anzahl der Aufrufe: /
Immobiliendetails
Typ
Wohnung
Fläche
86 m2
Grundstücksfläche
/ m2
Zimmer
3 Zimmer
Badezimmer
2 Zimmer
Parkplätze
/
Parkplatz
/
Garage
/
Stockwerk
2
Immobilienansicht
/
Energieklasse
/
Anzahl der Aufrufe
/
Kartenansicht
  • Ortsteil
    ŠIBENIK
  • Ort
    BRODARICA
  • Region
    ŠIBENSKO-KNINSKA
Agenturinfo
Bonum nekretnine d.o.o.
Verkäufer kontaktieren
Bonum nekretnine d.o.o.
Tomislav Drežnjak
+
=