Modernes Apartmenthaus mit Meerblick Modernes Apartmenthaus mit Meerblick

1.490.000 €

Ausstattung
  • 250 m2
  • 6
  • 6
Lage

PRIMOŠTEN

Beschreibung
In attraktiver Lage oberhalb von Primošten steht eine moderne Stadtvilla mit drei Apartments und einem Swimmingpool zum Verkauf.
 
Dank der Lage bieten alle Apartments einen herrlichen Blick auf das Meer und die vorgelagerten Inseln. Die Wohnfläche des Hauses beträgt insgesamt gut 250 m² und das Grundstück ist 480 m² groß.
Im gepflegten Garten befindet sich ein überdachter Parkplatz für drei Autos.
 
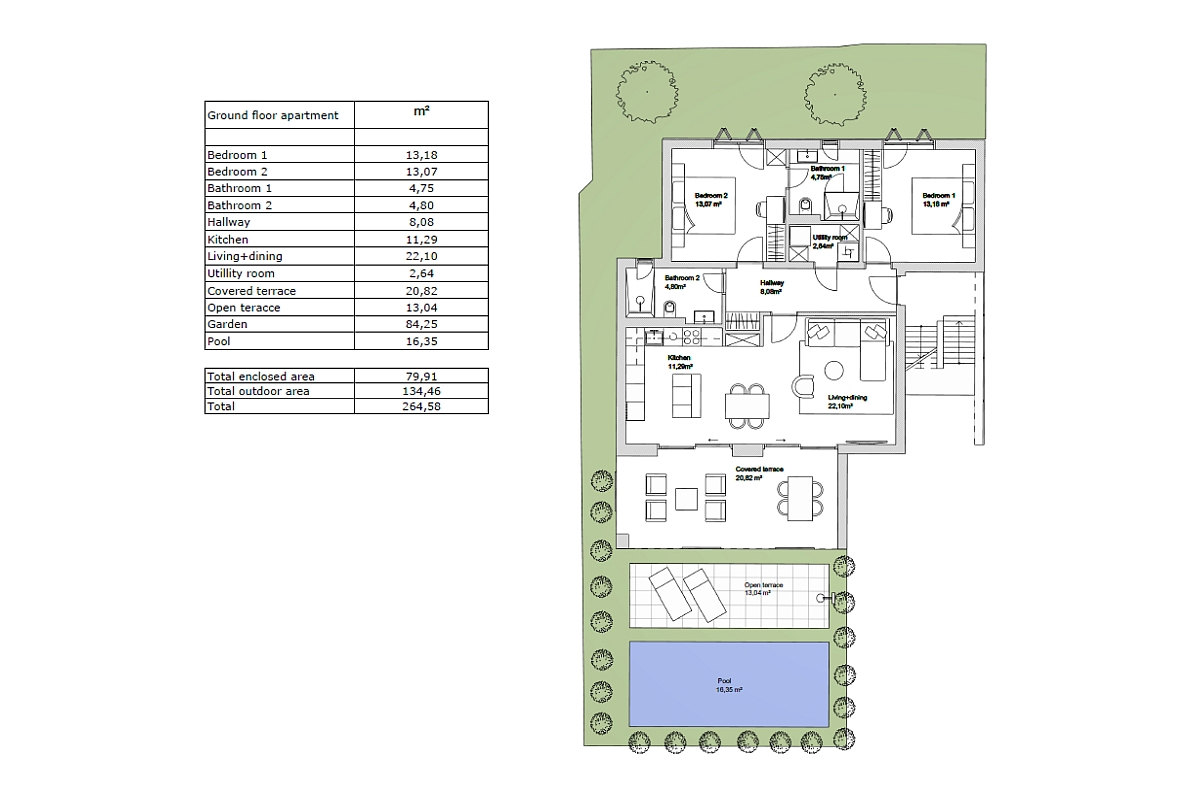
Die Apartments sind voneinander getrennt und verfügen über separate Eingänge, die durch eine Außentreppe verbunden sind. Alle drei Apartments bieten zwei Schlafzimmer, zwei Badezimmer und einen offenen Wohnbereich. Das erste Apartment im Erdgeschoss verfügt über eine Wohnfläche von 80 m² und einen 135 m² großen Garten mit Balkon und Sonnenterrasse.
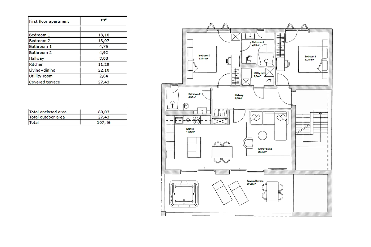
Das Apartment im ersten Stock ist ähnlich gestaltet. Es bietet 80 m² Wohnfläche und eine 27 m² große überdachte Terrasse.
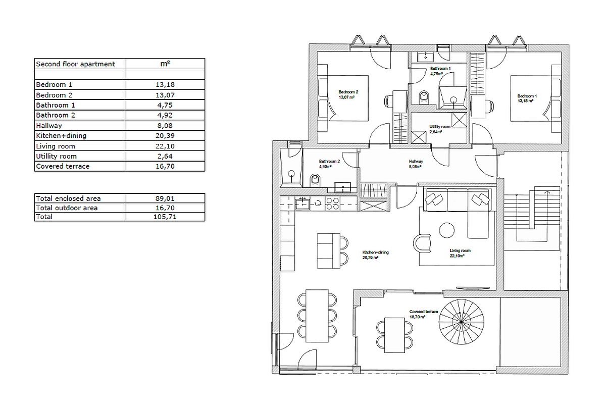
Die Wohnung im ersten Stock ist ähnlich gestaltet. Im zweiten Stock befindet sich ein Penthouse mit einer Wohnfläche von 90 m² und privatem Zugang zu einer ca. 65 m² großen Dachterrasse.
 
Dieses moderne Haus ist aufgrund seiner zentralen Lage mit allen Annehmlichkeiten und der gleichzeitig ruhigen und privaten Lage eine hervorragende Kapitalanlage.
Neben dem Verkauf des gesamten Hauses besteht auch die Möglichkeit, jede Wohnung einzeln zu erwerben.
Übersicht
  • Typ: Haus
  • Fläche: 250 m2
  • Grundstücksfläche: 480 m2
  • Zimmer: 6 Zimmer
  • Badezimmer: 6 Zimmer
  • Parkplätze: /
  • Parkplatz: /
  • Garage: /
  • Stockwerk: /
  • Immobilienansicht: aufs Meer
  • Energieklasse: /
  • Anzahl der Aufrufe: /
Immobiliendetails
Typ
Haus
Fläche
250 m2
Grundstücksfläche
480 m2
Zimmer
6 Zimmer
Badezimmer
6 Zimmer
Parkplätze
/
Parkplatz
/
Garage
/
Stockwerk
/
Immobilienansicht
aufs Meer
Energieklasse
/
Anzahl der Aufrufe
/
Kartenansicht
  • Ort
    PRIMOŠTEN
  • Region
    ŠIBENSKO-KNINSKA
Agenturinfo
BROKER - Real Estate Agency
Verkäufer kontaktieren
BROKER - Real Estate Agency
Darko Radelja
+
=