Poreč, Umgebung, Moderne freistehende Villa mit Pool Poreč, Umgebung, Moderne freistehende Villa mit Pool

920.000 €

Ausstattung
  • 251 m2
  • 5
  • 5
Lage

POREČ

Beschreibung
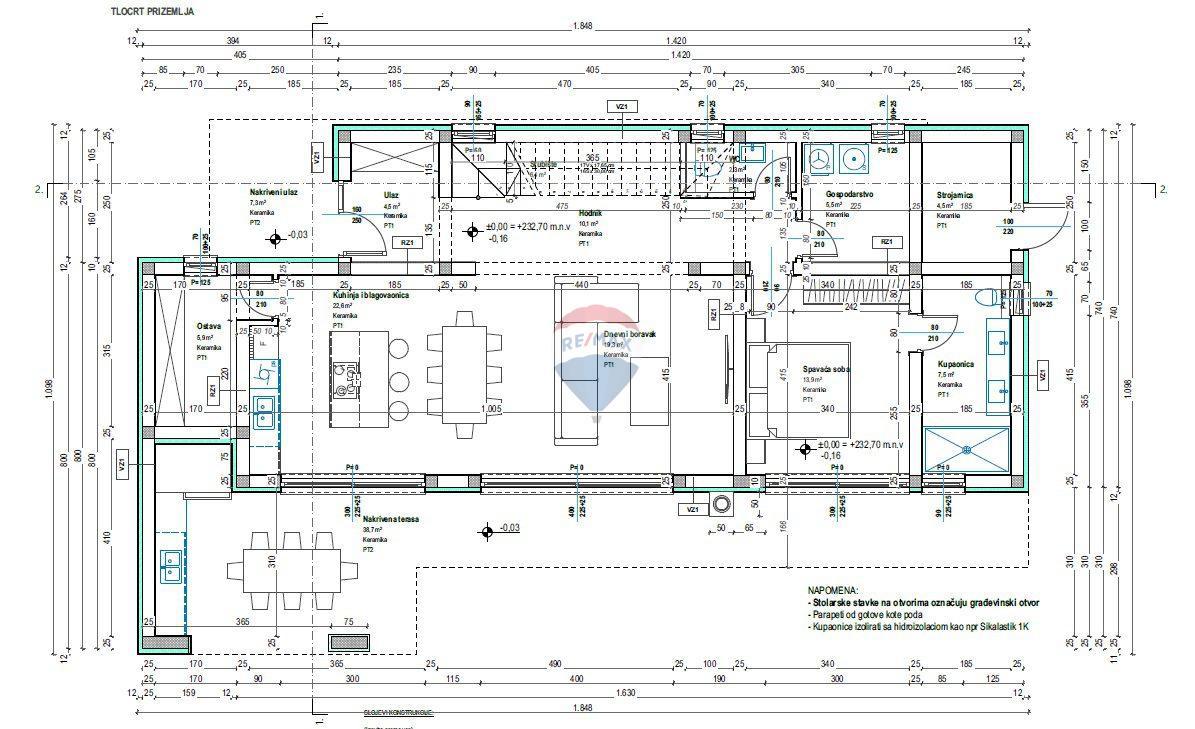
RE/MAX Centar Nekretnina präsentiert in ruhiger Lage nahe Poreč ein modernes, freistehendes Einfamilienhaus mit Pool.
Das Haus verfügt über eine Etagenaufteilung Erdgeschoss + Obergeschoss (EG+1) und besteht aus einer Wohneinheit, die sich über zwei Etagen erstreckt, mit zusätzlicher Dachterrasse.

Es befindet sich auf einem großzügigen Baugrundstück von 821 m², während die gesamte Bruttowohnfläche des Hauses 251,80 m² beträgt. Einen zusätzlichen Mehrwert bietet der Außenpool mit den Maßen 4 x 9 m, ideal zum Entspannen und für den Aufenthalt im Freien.

Das Erdgeschoss umfasst einen überdachten Eingangsbereich mit Diele, Gäste-WC, Hauswirtschaftsraum, ein großzügiges Wohnzimmer mit Küche und Essbereich, Abstellraum, Schlafzimmer mit Ankleide und eigenem Bad, Technikraum sowie eine überdachte Terrasse mit Zugang zum Poolbereich.

Im Obergeschoss befinden sich ein Flur mit Treppenhaus sowie drei Schlafzimmer, jeweils mit eigenem Badezimmer, sowie eine überdachte und eine nicht überdachte Terrasse.

Auf dem Dach des Hauses befindet sich eine großzügige Dachterrasse mit Treppenzugang, vorbereitet für eine Überdachung, Sauna und Whirlpool (Geräte sind nicht im Preis enthalten).

Das Gebäude wurde aus hochwertigen und langlebigen Materialien gemäß den geltenden Vorschriften errichtet. Die Konstruktion besteht aus Stahlbetonfundamenten und Zwischendecken sowie tragenden Wänden mit Wärmedämmung.

Das Haus ist ausgestattet mit:

Flachdach mit TPO-Abdichtung

hochwertiger PVC-Fenster- und Türverglasung im gesamten Haus sowie Aluminium-Schiebetüren

Rollläden als Sonnenschutz

modern gestalteten Zäunen

innenliegendem Stahlbetontreppenhaus

Anschlüsse an Wasser, Kanalisation, Strom und Telekommunikationsnetz sind vorhanden.

Diese Immobilie stellt eine hervorragende Gelegenheit für komfortables Familienwohnen, ein Ferienhaus oder eine Investition zur touristischen Vermietung dar.
Übersicht
  • Typ: Haus
  • Fläche: 251 m2
  • Grundstücksfläche: 721 m2
  • Zimmer: 5 Zimmer
  • Badezimmer: 5 Zimmer
  • Parkplätze: /
  • Parkplatz: /
  • Garage: /
  • Stockwerk: /
  • Immobilienansicht: aufs Meer
  • Energieklasse: /
  • Anzahl der Aufrufe: /
Immobiliendetails
Typ
Haus
Fläche
251 m2
Grundstücksfläche
721 m2
Zimmer
5 Zimmer
Badezimmer
5 Zimmer
Parkplätze
/
Parkplatz
/
Garage
/
Stockwerk
/
Immobilienansicht
aufs Meer
Energieklasse
/
Anzahl der Aufrufe
/
Kartenansicht
  • Ort
    POREČ
  • Region
    ISTARSKA
Agenturinfo
Remax Centar nekretnina
Verkäufer kontaktieren
+
=