Rovinj Umgebung, Wohnung mit zwei Schlafzimmern im ersten St... Rovinj Umgebung, Wohnung mit zwei Schlafzimmern im ersten Stock

290.500 €

Ausstattung
  • 74 m2
  • 3
  • 2
Lage

ROVINJ

Beschreibung
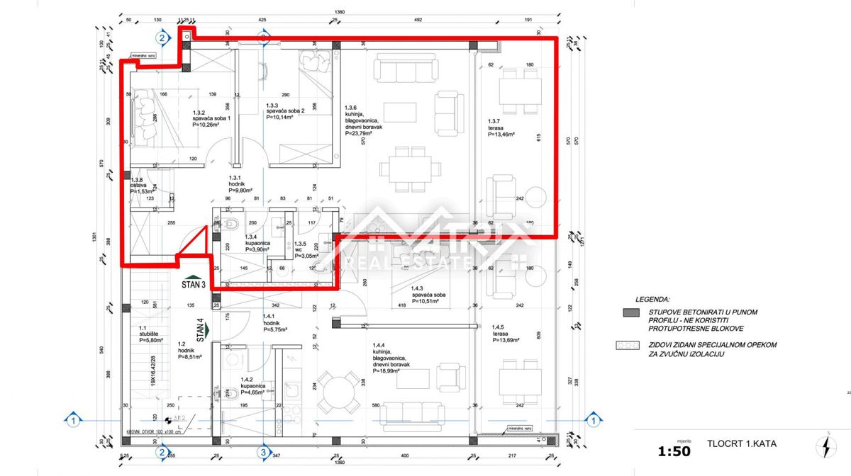
Moderne Wohnung im 1. Stock mit Terrasse und Blick ins Grüne

Diese hochwertig gebaute Wohnung im ersten Stock befindet sich in ruhiger und attraktiver Lage in einem modernen Wohngebäude. Die Wohnung besteht aus zwei Schlafzimmern, einem Badezimmer, einem Abstellraum, einer offenen Küche mit Ess- und Wohnbereich sowie einer Terrasse mit freiem Blick auf die Natur – ideal zum Entspannen.

Zur Wohnung gehören zwei gesicherte Parkplätze. Auf dem Grundstück stehen zudem drei Ladestationen für Elektrofahrzeuge zur Verfügung, was eine praktische und nachhaltige Lösung darstellt.

Hochwertige Ausstattung und Materialien

Heizung und Kühlung erfolgen über ein MultiSplit-System, während im Badezimmer und in der Küche Fußbodenheizung installiert ist. Der Bodenbelag besteht aus italienischen Keramikfliesen in allen Räumen, außer in den Schlafzimmern, wo Holzböden vorgesehen sind.

Große Glasflächen bestehen aus weißer PVC-Fenster- und Türanlage mit außenliegender Aluminiumverkleidung in Anthrazit, mit Dreifachverglasung und elektrischen Aluminiumrollläden. Die Balkontüren sind Hebeschiebetüren, und die abgehängte Decke verdeckt die Gardinenschiene und sorgt für ein modernes Erscheinungsbild.

Hochwertige Bauweise und modernes Fassadendesign

Die Fassade des Gebäudes ist mit einem 10 cm starken Wärmedämmverbundsystem (Demit) ausgeführt und mit dekorativen Steinelementen ergänzt.

Zusätzliche Ausstattungsmerkmale

Die Warmwasserversorgung erfolgt über einen Inverter-Boiler der Energieklasse A. Armaturen von HansGrohe oder Grohe garantieren höchste Qualität. Die Sanitärausstattung umfasst Unterputzspülkästen, WC und Waschbecken von Grohe, Geberit oder gleichwertiger Qualität. Die Gemeinschaftsbereiche sind mit Granitstein ausgestattet, und das Geländer ist geschmiedet mit Holzhandlauf, was dem Gebäude einen luxuriösen Charakter verleiht.

Ausgezeichnete Lage

Die Wohnung liegt in einem ruhigen Wohngebiet mit hervorragender Infrastruktur und allen wichtigen Einrichtungen in der Nähe:

Schule – 1,7 km

Kindergarten – 1,7 km

Supermarkt – 2,4 km

Öffentliche Verkehrsmittel – 150 m

Restaurant – 100 m

Die ausgezeichnete Verkehrsanbindung ermöglicht eine schnelle Erreichbarkeit der Autobahn und von Rovinj.
Übersicht
  • Typ: Wohnung
  • Fläche: 74 m2
  • Grundstücksfläche: / m2
  • Zimmer: 3 Zimmer
  • Badezimmer: 2 Zimmer
  • Parkplätze: /
  • Parkplatz: /
  • Garage: /
  • Stockwerk: 1
  • Immobilienansicht: /
  • Energieklasse: /
  • Anzahl der Aufrufe: /
Immobiliendetails
Typ
Wohnung
Fläche
74 m2
Grundstücksfläche
/ m2
Zimmer
3 Zimmer
Badezimmer
2 Zimmer
Parkplätze
/
Parkplatz
/
Garage
/
Stockwerk
1
Immobilienansicht
/
Energieklasse
/
Anzahl der Aufrufe
/
Kartenansicht
  • Ort
    ROVINJ
  • Region
    ISTARSKA
Agenturinfo
Matrix Real Estate
Verkäufer kontaktieren
Matrix Real Estate
Lemi Brajković Bassanese
+
=