Modernes Haus mit Pool in Poreč, ruhige Lage Modernes Haus mit Pool in Poreč, ruhige Lage

550.000 €

Ausstattung
  • 166 m2
  • 5
  • 5
Lage

MUŠALEŽ , POREČ

Beschreibung
In der Stadt Poreč befindet sich ein moderner urbaner Wohnkomplex mit insgesamt zwanzig modern gestalteten Reihenhäusern, die sich derzeit im Bau befinden. Das Projekt ist als harmonische Einheit konzipiert, die ein hohes Maß an Komfort, Privatsphäre und Funktionalität bietet – ideal für ein qualitativ hochwertiges Leben oder als ausgezeichnete Investition. Jedes Haus zeichnet sich durch eine durchdachte Raumaufteilung, architektonische Gestaltung, einen privaten Garten mit Pool sowie zwei Parkplätze im Hof aus. Der nächstgelegene Strand und das Stadtzentrum sind 3 km entfernt.

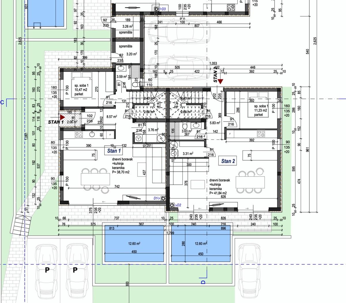
Alle Häuser sind ähnlich konzipiert und bestehen aus Erdgeschoss, Obergeschoss und Dachgeschoss. Im Erdgeschoss befindet sich ein offener Wohnbereich, der Küche, Esszimmer und Wohnzimmer mit Ausgang zur Terrasse und zum Hof vereint. Im Obergeschoss sind die Schlafzimmer mit Badezimmern und begehbaren Kleiderschränken untergebracht, während sich im Dachgeschoss ein zusätzliches Schlafzimmer mit eigenem Bad, begehbarem Kleiderschrank und zwei großzügigen Terrassen befindet.

Beim Bau werden hohe Qualitätsstandards eingehalten, wobei besonderes Augenmerk auf Details gelegt wird. Ein besonderer Fokus liegt auf gepflegten Außenanlagen, modernem Innendesign, viel natürlichem Licht dank großer Glasflächen sowie einer harmonischen Palette natürlicher Farben und Materialien. All dies schafft einen Raum, der ein hohes Maß an Komfort, Funktionalität und Privatsphäre bietet – sei es für das ganzjährige Wohnen oder für die touristische Vermietung der gehobenen Kategorie.

Die Mikrolage dieser Mini-Siedlung gewährleistet eine ruhige und angenehme Umgebung bei gleichzeitiger Nähe zum Stadtzentrum und allen wichtigen Einrichtungen, die für ein qualitativ hochwertiges tägliches Leben erforderlich sind. Gerade diese Kombination aus Privatsphäre, urbaner Anbindung und Nähe zum Meer macht das Projekt auch aus Investitionssicht äußerst attraktiv.

Neben der wunderschönen Küste bietet Poreč dank seiner günstigen geografischen Lage und hervorragenden Verkehrsanbindung an europäische Städte – Ljubljana ist 180 km entfernt, Triest 116 km – ausgezeichnete Lebensbedingungen und eine langfristig sichere Investition. Die gute Anbindung an den Rest Istriens, Novigrad 13 km, Rovinj 38 km und der Flughafen Pula 63 km, bestätigen zusätzlich das starke touristische Potenzial dieses Standorts.

Poreč ist eine der bekanntesten Städte Istriens mit einer fast 2.000 Jahre langen Geschichte. Sein bedeutendstes Denkmal, die Euphrasius-Basilika aus dem 6. Jahrhundert, ist in die UNESCO-Welterbeliste aufgenommen. Die Stadt entwickelte sich auf einer malerischen Halbinsel, geschützt durch die Insel Sveti Nikola, und gehört seit Jahrzehnten zusammen mit Rovinj zu den meistbesuchten Touristenzielen Kroatiens, mit einer äußerst stabilen Nachfrage nach hochwertigem Wohnraum.

OBJEKTBESCHREIBUNG:

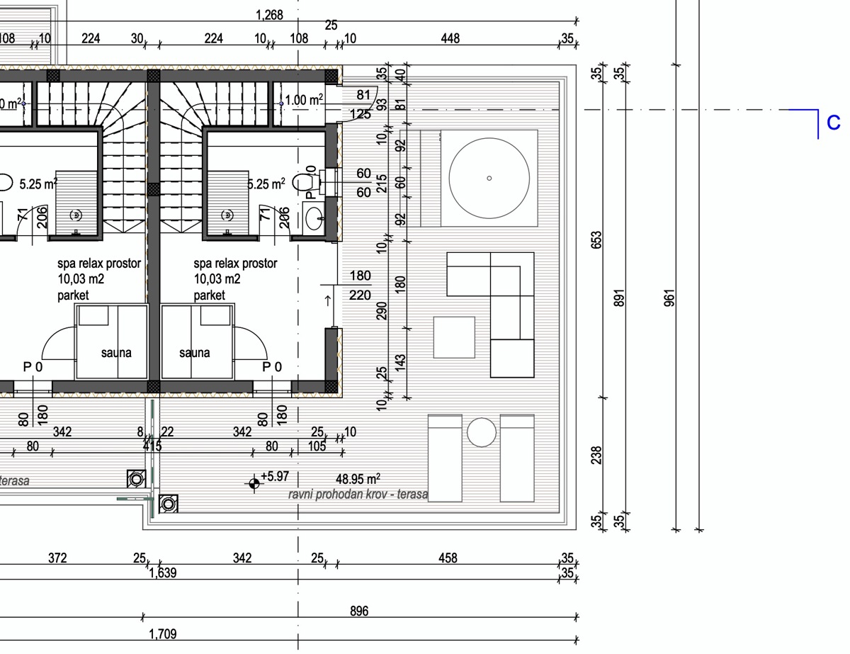
Haus B-S2 - (Erdgeschoss + 1. Obergeschoss + Dachgeschoss) - Wohnfläche 146,62 m2 (4 Schlafzimmer + 5 Badezimmer + Spa-Bereich) + Loggia (5,52 m2 - Süd) + unüberdachte Terrasse (49 m2 - Süd + Ost) + Hof mit Pool + zwei Außenstellplätze; gesamte Nettowohnfläche 166,18 m2 = 550.000 EUR (inkl. MwSt.)

Für weitere Details, zusätzliche Informationen oder zur Vereinbarung eines Besichtigungstermins stehe ich gerne zur Verfügung.



SAN PATRIK PREMIUM STANDARD
Diese Immobilie wird von San Patrik vertreten, einer Boutique Agentur, die fachkundige Beratung und eine individuelle Betreuung jedes Käufers bietet. Unsere Aufgabe ist es, geprüfte Unterlagen, vollständige rechtliche Sicherheit und einen transparenten Kaufprozess zu gewährleisten, mit Zugang zu allen wichtigen Informationen, bevor eine Kaufentscheidung getroffen wird.

Übersicht
  • Typ: Haus
  • Fläche: 166 m2
  • Grundstücksfläche: / m2
  • Zimmer: 5 Zimmer
  • Badezimmer: 5 Zimmer
  • Parkplätze: /
  • Parkplatz: 24
  • Garage: /
  • Stockwerk: /
  • Immobilienansicht: /
  • Energieklasse: 2
  • Anzahl der Aufrufe: /
Immobiliendetails
Typ
Haus
Fläche
166 m2
Grundstücksfläche
/ m2
Zimmer
5 Zimmer
Badezimmer
5 Zimmer
Parkplätze
/
Parkplatz
24
Garage
/
Stockwerk
/
Immobilienansicht
/
Energieklasse
2
Anzahl der Aufrufe
/
Kartenansicht
  • Ortsteil
    POREČ
  • Ort
    MUŠALEŽ
  • Region
    ISTARSKA
Agenturinfo
San Patrik nekretnine
Verkäufer kontaktieren
San Patrik nekretnine
Ivan Varat
+
=