Pula! Mehrfamilienhaus, moderne Gebäude mit Aufzug, nahe dem... Pula! Mehrfamilienhaus, moderne Gebäude mit Aufzug, nahe dem Zentrum. Wohnung mit Parkplatz und Abstellraum. s66

236.000 €

Ausstattung
  • 55 m2
  • 2
  • 1
Lage

PULA

Beschreibung
Pula!
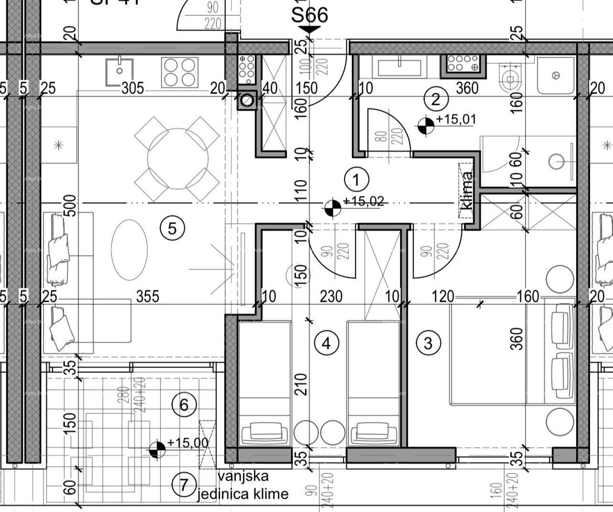
Zum Verkauf steht eine Wohnung im 5. Stock eines Mehrfamilienhauses mit Aufzug. Die Wohnung besteht aus einem Eingangsflur mit Garderobe, 2 Schlafzimmern, einem Badezimmer, einer Küche mit Essbereich sowie einem Wohnzimmer, einer Loggia und einer überdachten Terrasse.

Hinweis: Zur Wohnung gehört ein Parkplatz und ein Abstellraum, die im Preis enthalten sind.

AUSSTATTUNG:
-elektrische Fußbodenheizung im Badezimmer
-elektrischer Boiler Ariston Velis
-einbruchshemmende Eingangstür
-Inverter-Klimaanlage
-Fliesen
-Laminat
-innere weiße Zimmertüren

Die Wohnungen werden schlüsselfertig verkauft.
Ausgezeichnete Lage. Nähe zum Einkaufszentrum und zum Stadtzentrum von Pula - 1 km.

Das Gebäude wird zwei Eingänge, zwei Aufzüge und 6 Etagen haben.
Es sind weitere freie Wohnungen im Angebot.

*Der Preis beinhaltet die Mehrwertsteuer.

Der geplante Abschluss der Bauarbeiten ist Ende 2026.

Info:
Azra Valjevac
+385 91 611 5706
azra@almadominvest.com
+385 98 420 885
Übersicht
  • Typ: Wohnung
  • Fläche: 55 m2
  • Grundstücksfläche: / m2
  • Zimmer: 2 Zimmer
  • Badezimmer: 1 Zimmer
  • Parkplätze: /
  • Parkplatz: /
  • Garage: /
  • Stockwerk: 5
  • Immobilienansicht: /
  • Energieklasse: 1
  • Anzahl der Aufrufe: /
Immobiliendetails
Typ
Wohnung
Fläche
55 m2
Grundstücksfläche
/ m2
Zimmer
2 Zimmer
Badezimmer
1 Zimmer
Parkplätze
/
Parkplatz
/
Garage
/
Stockwerk
5
Immobilienansicht
/
Energieklasse
1
Anzahl der Aufrufe
/
Kartenansicht
  • Ort
    PULA
  • Region
    ISTARSKA
Agenturinfo
Alma Dom - Real Estate
Verkäufer kontaktieren
Alma Dom - Real Estate
Alma Valjevac
+
=