ZADAR, DIKLO – Maisonette-Wohnung im Bau Z2S1 ZADAR, DIKLO – Maisonette-Wohnung im Bau Z2S1

578.650 €

Ausstattung
  • 115 m2
  • 4
  • 3
Lage

ZADAR

Beschreibung
ZADAR, DIKLO – Maisonette-Wohnung im Bau (Z2S1)

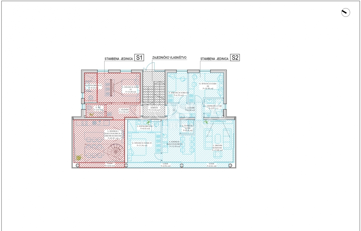
In Diklo, Zadar, steht eine im Bau befindliche Maisonette-Wohnung zum Verkauf. Die 98,48 m² große Wohnung befindet sich im Erdgeschoss und ersten Obergeschoss eines kleineren Wohngebäudes mit vier Einheiten in einem exklusiven Komplex luxuriöser Neubauten. Die Erdgeschosswohnung umfasst ein Schlafzimmer, ein Wohnzimmer, eine Wohnküche, ein Badezimmer, ein Gäste-WC, einen Flur und eine zusätzliche Loggia von 2,56 m². Im Obergeschoss befinden sich zwei Schlafzimmer, ein Badezimmer, ein Wohnzimmer und eine weitere Loggia (2,56 m²). Zur Wohnung gehören außerdem ein 7,55 m² großer Abstellraum, ein Außenstellplatz und ein Garagenstellplatz. Die Gesamtnutzfläche der Wohnung inklusive aller Nebenkosten beträgt 138,65 m² (K.V. 115,73 m²).

Für den Bau wurden hochwertige Materialien verwendet, darunter eine Wärmedämmung an der Fassade und Aluminiumfenster und -türen mit integrierten elektrischen Jalousien und Moskitonetzen. Die Wohnung ist mit Brandschutz- und Einbruchschutztüren ausgestattet. Für die Bodenbeläge wurden erstklassige Keramikfliesen verlegt, und die gesamte Wohnung verfügt über eine wasserbasierte Fußbodenheizung mit Wärmepumpen. Die Wohnung wird vollständig durch Deckenklimageräte klimatisiert.

Die Immobilie befindet sich in attraktiver Lage in Diklo, nur 650 m vom Strand entfernt. Restaurants und Cafés sind in der Nähe, und das nächste Geschäft ist 750 m entfernt. Das Zentrum von Zadar ist 5 km und der Flughafen Zemunik 19 km entfernt. Diklo ist eines der beliebtesten Reiseziele in der Sommersaison, daher ist die Immobilie neben ihrer Eignung als Wohnraum auch eine hervorragende Investition im Tourismussektor.

Sehr geehrte Kunden, die Maklergebühr wird gemäß den Allgemeinen Geschäftsbedingungen berechnet.
https://costa-nekretnine.hr/o-nama/opci-uvjeti-poslovanja
Übersicht
  • Typ: Wohnung
  • Fläche: 115 m2
  • Grundstücksfläche: / m2
  • Zimmer: 4 Zimmer
  • Badezimmer: 3 Zimmer
  • Parkplätze: /
  • Parkplatz: /
  • Garage: 1
  • Stockwerk: /
  • Immobilienansicht: aufs Meer
  • Energieklasse: /
  • Anzahl der Aufrufe: /
Immobiliendetails
Typ
Wohnung
Fläche
115 m2
Grundstücksfläche
/ m2
Zimmer
4 Zimmer
Badezimmer
3 Zimmer
Parkplätze
/
Parkplatz
/
Garage
1
Stockwerk
/
Immobilienansicht
aufs Meer
Energieklasse
/
Anzahl der Aufrufe
/
Kartenansicht
  • Ort
    ZADAR
  • Region
    ZADARSKA
Agenturinfo
Costa Nekretnine
Verkäufer kontaktieren
+
=