Brodarica, Neubau, 2-Zimmer-Wohnung mit 74 m² Wohnfläche Brodarica, Neubau, 2-Zimmer-Wohnung mit 74 m² Wohnfläche

225.000 €

Ausstattung
  • 74 m2
  • 3
  • 1
Lage

BRODARICA , ŠIBENIK

Beschreibung
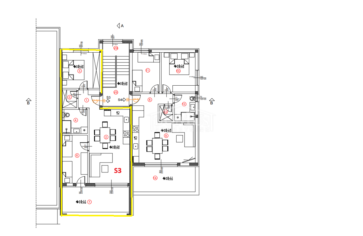
Brodarica – Neubau, Wohngebäude mit 7 Wohneinheiten.
Das Gebäude verfügt über insgesamt drei Etagen: Erdgeschoss, erster Stock und zweiter Stock. Es ist modern gestaltet und mit hochwertiger Ausstattung versehen, darunter Fußbodenheizung in den Badezimmern, Klimaanlagen zum Heizen und Kühlen in jedem Raum, hochwertige Tischlerei, Fenster mit elektrischen Rollläden, Insektenschutzgitter, einbruchssichere Eingangstüren sowie moderne Badezimmereinrichtungen.
Voraussichtlicher Einzugstermin: Sommer 2027. Die Wohneinheit S3 befindet sich im zweiten Stock des Gebäudes und hat eine Gesamtfläche von 74 m².
Die Wohnung besteht aus einem Flur, einer Küche, einem Essbereich und einem Wohnzimmer in einem offenen Raumkonzept, mit Zugang zu einer überdachten Loggia mit einer Fläche von 16,20 m², zwei Schlafzimmern, von denen eines ebenfalls Zugang zur Loggia hat, einem Badezimmer sowie einem Abstellraum.
Zur Wohnung gehören zwei Parkplätze. Das Gebäude liegt 600 m vom Strand und 800 m von allen wichtigen Einrichtungen entfernt.

Der Käufer ist von der Grunderwerbsteuer befreit.

Übersicht
  • Typ: Wohnung
  • Fläche: 74 m2
  • Grundstücksfläche: / m2
  • Zimmer: 3 Zimmer
  • Badezimmer: 1 Zimmer
  • Parkplätze: /
  • Parkplatz: 1
  • Garage: /
  • Stockwerk: 2
  • Immobilienansicht: /
  • Energieklasse: /
  • Anzahl der Aufrufe: /
Immobiliendetails
Typ
Wohnung
Fläche
74 m2
Grundstücksfläche
/ m2
Zimmer
3 Zimmer
Badezimmer
1 Zimmer
Parkplätze
/
Parkplatz
1
Garage
/
Stockwerk
2
Immobilienansicht
/
Energieklasse
/
Anzahl der Aufrufe
/
Kartenansicht
  • Ortsteil
    ŠIBENIK
  • Ort
    BRODARICA
  • Region
    ŠIBENSKO-KNINSKA
Agenturinfo
DOMUS agencija za nekretnine
Verkäufer kontaktieren
DOMUS agencija za nekretnine
Catherine Marasović
+
=