ZADAR, ROTE HÄUSER - Wohnung 61,13 m², Garage + Parkplatz! ZADAR, ROTE HÄUSER - Wohnung 61,13 m², Garage + Parkplatz!

232.000 €

Ausstattung
  • 61 m2
  • 1
  • 1
Lage

ZADAR

Beschreibung
ZADAR, CRVENE KUĆE – Wohnung 61,13 m², Garage + Stellplatz!

In einer ruhigen und begehrten Gegend von Zadar, im Viertel Crvene kuće, befindet sich ein modernes Wohngebäude mit insgesamt acht Wohnungen. Bei der Gestaltung wurde besonderer Wert auf hochwertige Bauweise, Funktionalität und ein angenehmes Wohnklima gelegt.

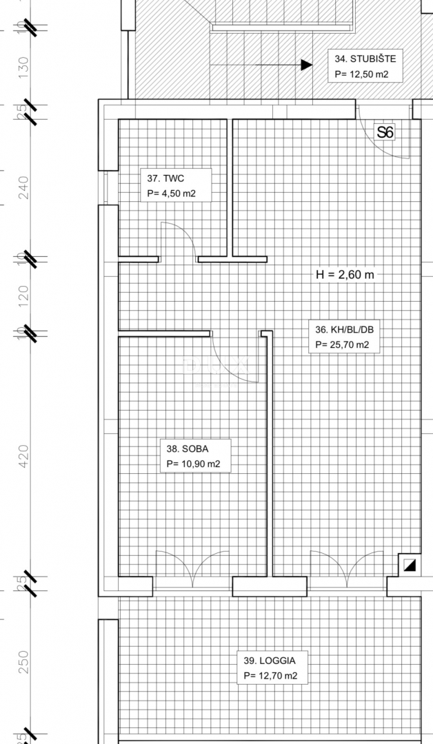
Besonders hervorzuheben ist die Wohnung S6 im zweiten Obergeschoss mit einer Wohnfläche von 61,1 m² inklusive aller Annehmlichkeiten. Es handelt sich um eine komfortable Einzimmerwohnung mit optimaler Raumaufteilung, bestehend aus einem Wohnzimmer mit angrenzender Küche, Schlafzimmer, Flur und einer gemütlichen Loggia. Die Wohnung ist mit hochwertigen PVC-Fenstern, elektrischen Rollläden und Insektenschutzgittern ausgestattet. Klimaanlagen im Wohn- und Schlafzimmer sorgen für angenehme Temperaturen. Ein Kamin mit der Möglichkeit zum Beheizen mit einem Festbrennstoffofen bietet zusätzlichen Komfort.

Zur Wohnung gehören ein eigener Abstellraum und zwei Stellplätze – einer in der Garage und einer im Freien –, was maximalen Komfort im Alltag gewährleistet.

Das gesamte Gebäude wurde mit hochwertigen und geprüften Materialien errichtet. Alle Wohnungen verfügen über einen Kamin für Festbrennstoffheizung, Klimaanlage in Wohn- und Schlafzimmern sowie Fußbodenheizung in den Badezimmern. Die Schlafzimmer sind mit Parkettboden ausgestattet, die übrigen Räume mit hochwertigen Fliesen. Jede Wohnung bietet einen Abstellraum, eine Garage und einen Außenstellplatz.

Die Lage ist ideal für Familien: In unmittelbarer Nähe befinden sich eine Grundschule, ein Kindergarten und alle notwendigen Einrichtungen. Die Nachbarschaft selbst bietet Ruhe, Privatsphäre und ein angenehmes Wohnumfeld – perfekt für eine sichere, langfristige Investition.

Sehr geehrte Kunden, die Maklerprovision richtet sich nach den Allgemeinen Geschäftsbedingungen:
www.dux-nekretnine.hr/opci-uvjeti-poslovanja
Übersicht
  • Typ: Wohnung
  • Fläche: 61 m2
  • Grundstücksfläche: / m2
  • Zimmer: 1 Zimmer
  • Badezimmer: 1 Zimmer
  • Parkplätze: /
  • Parkplatz: /
  • Garage: 1
  • Stockwerk: 2
  • Immobilienansicht: aufs Meer
  • Energieklasse: /
  • Anzahl der Aufrufe: /
Immobiliendetails
Typ
Wohnung
Fläche
61 m2
Grundstücksfläche
/ m2
Zimmer
1 Zimmer
Badezimmer
1 Zimmer
Parkplätze
/
Parkplatz
/
Garage
1
Stockwerk
2
Immobilienansicht
aufs Meer
Energieklasse
/
Anzahl der Aufrufe
/
Kartenansicht
  • Ort
    ZADAR
  • Region
    ZADARSKA
Agenturinfo
DUX Nekretnine
Verkäufer kontaktieren
DUX Nekretnine
Tony Jerković
+
=