Pula, Šikići, Neubau – Geräumige 2-Zimmer-Wohnung (B6) mit P... Pula, Šikići, Neubau – Geräumige 2-Zimmer-Wohnung (B6) mit Parkplatz

175.275 €

Ausstattung
  • 57 m2
  • 3
  • 1
Lage

PULA

Beschreibung
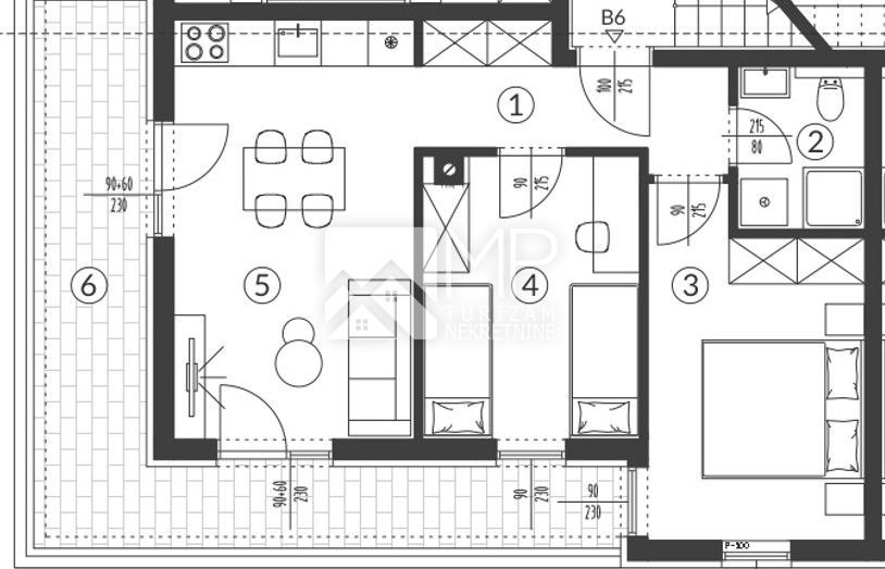
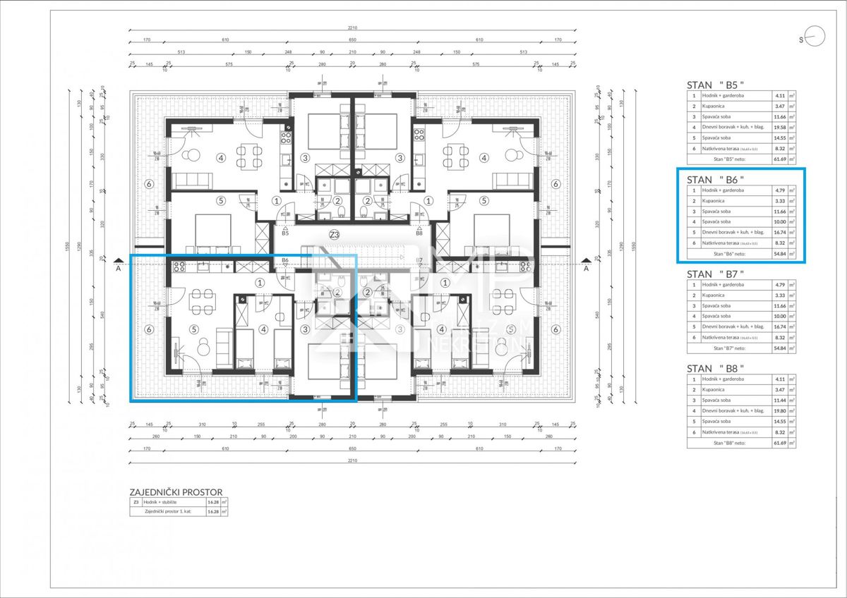
Zum Verkauf steht eine funktional aufgeteilte Zweizimmerwohnung in einem Neubau (Bezeichnung: B6) mit einer Nettowohnfläche von 54,84 m² und einem zugehörigen Stellplatz PM43(3,12 m²), wodurch sich eine Gesamtfläche von 57,96 m² ergibt.
Die Wohnung befindet sich im ersten Obergeschoss des Wohngebäudes „B“ und bietet eine ideale Gelegenheit für ein angenehmes Familienleben oder als sichere Kapitalanlage zur Vermietung in einer ruhigen und hochwertigen Umgebung.

Die Wohnung besteht aus:
• Eingangsbereich mit Garderobe – 4,79 m²
• Badezimmer – 3,33 m²
• Schlafzimmer – 11,66 m²
• Schlafzimmer – 10,00 m²
• Wohnzimmer mit Küche und Essbereich – 16,74 m²
• überdachte Terrasse – 16,63 m² (berechnet mit 50 % = 8,32 m²)

Die Wohnung besticht durch ihren funktionalen und durchdachten Grundriss. Sie bietet Komfort und Privatsphäre in zwei Schlafzimmern, was in einem Neubau dieser Größe selten ist. Große Glasflächen sorgen für viel Tageslicht, und vom Wohnzimmer aus gelangt man direkt auf eine geräumige, überdachte Terrasse – ideal zum Entspannen und geselligen Beisammensein. Ein Parkplatz ist im Preis inbegriffen, und die Käufer sind von der Grundsteuer befreit.

Die Wohnung befindet sich im ruhigen und familienfreundlichen Dorf Šikići, nur wenige Autominuten vom Zentrum von Pula, Medulin und den Stränden entfernt. Das Projekt umfasst mehrere moderne Gebäude mit funktionalen Grundrissen, privaten Parkplätzen, Abstellräumen und gestalteten Grünflächen, wobei besonderer Wert auf Luftigkeit und viel natürliches Licht gelegt wird, was die Wohnungen ideal für einen angenehmen Alltag macht.
Übersicht
  • Typ: Wohnung
  • Fläche: 57 m2
  • Grundstücksfläche: / m2
  • Zimmer: 3 Zimmer
  • Badezimmer: 1 Zimmer
  • Parkplätze: /
  • Parkplatz: /
  • Garage: /
  • Stockwerk: 1
  • Immobilienansicht: /
  • Energieklasse: /
  • Anzahl der Aufrufe: /
Immobiliendetails
Typ
Wohnung
Fläche
57 m2
Grundstücksfläche
/ m2
Zimmer
3 Zimmer
Badezimmer
1 Zimmer
Parkplätze
/
Parkplatz
/
Garage
/
Stockwerk
1
Immobilienansicht
/
Energieklasse
/
Anzahl der Aufrufe
/
Kartenansicht
  • Ort
    PULA
  • Region
    ISTARSKA
Agenturinfo
Marko Polo Nekretnine
Verkäufer kontaktieren
+
=