Karin Donji - Haus mit 3 Wohnungen, offener Meerblick! 27800... Karin Donji - Haus mit 3 Wohnungen, offener Meerblick! 278000€

278.000 €

Ausstattung
  • 150 m2
  • 7
  • 3
Lage

DONJI KARIN , BENKOVAC

Beschreibung
Karin Donji

Haus mit einer Fläche von 150 m2 auf einem Grundstück von 214 m2 in der ruhigen Umgebung der multikulturellen Siedlung Karin Donji.
Offener Meerblick.
Etwa 200 m vom Meer und Strand entfernt.

3 moderne Wohnungen.

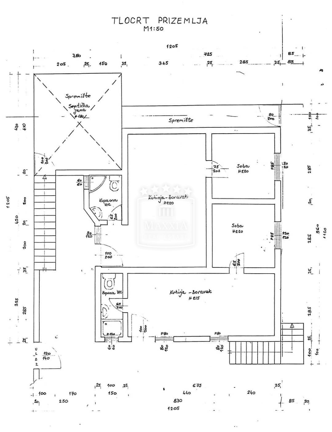
Das Haus besteht aus zwei Etagen.
Erdgeschoss:
zwei 1,5-Zimmer-Wohnungen mit separaten Eingängen, die jeweils bestehen aus:
- Küche mit Esszimmer und Wohnzimmer,
- Schlafzimmer,
- Badezimmer mit Toilette.
Boden:
2,5-Zimmer-Wohnung bestehend aus:
- Küche mit Esszimmer und Wohnzimmer,
- 2 Schlafzimmer,
- Badezimmer mit Toilette,
- große Terrasse mit offenem Meerblick.

Das Haus hat einen größeren und einen kleineren Abstellraum.
Der Hof ist ordentlich gepflegt mit viel Grün und einem Grill und bietet Privatsphäre.

Klimatisiert; Heizung mit Elektroradiatoren.

Eine ausgezeichnete Gelegenheit für einen ganzjährigen Aufenthalt für eine große Familie sowie für die Teilnahme an touristischen Aktivitäten.

BESICHTIGUNG DER IMMOBILIE 7/7 TAGE
NACH VORHERIGER VEREINBARUNG!
Übersicht
  • Typ: Haus
  • Fläche: 150 m2
  • Grundstücksfläche: 102 m2
  • Zimmer: 7 Zimmer
  • Badezimmer: 3 Zimmer
  • Parkplätze: /
  • Parkplatz: /
  • Garage: /
  • Stockwerk: /
  • Immobilienansicht: aufs Meer
  • Energieklasse: /
  • Anzahl der Aufrufe: /
Immobiliendetails
Typ
Haus
Fläche
150 m2
Grundstücksfläche
102 m2
Zimmer
7 Zimmer
Badezimmer
3 Zimmer
Parkplätze
/
Parkplatz
/
Garage
/
Stockwerk
/
Immobilienansicht
aufs Meer
Energieklasse
/
Anzahl der Aufrufe
/
Kartenansicht
  • Ortsteil
    BENKOVAC
  • Ort
    DONJI KARIN
  • Region
    ZADARSKA
Agenturinfo
MAXXIA Real Estate Nekretnine
Verkäufer kontaktieren
+
=