Rijeka – Bivio wohnung 3 Rijeka – Bivio wohnung 3

360.000 €

Ausstattung
  • 40 m2
  • 2
  • 1
Lage

RIJEKA

Beschreibung
Einzimmerwohnung in einem luxuriösen Neubau mit Loggia, Abstellraum und Parkplatz
In der prestigeträchtigen Lage Bivio in Rijeka, nur wenige Gehminuten vom Meer entfernt, befindet sich diese moderne Einzimmerwohnung im ersten Stock eines hochwertigen Neubaus. Sie ist ideal für alle, die ein praktisches, elegantes und energieeffizientes Zuhause in einer außergewöhnlichen Mikrolage suchen.
Die Wohnung ist Teil eines modernen Wohngebäudes mit Aufzug, fortschrittlichen Energiesystemen, Tiefgarage und vorbereiteter Infrastruktur für Ladestationen von Elektrofahrzeugen. Bivio ist bekannt für seine ruhige Umgebung, hervorragende Anbindung und den Panorama-Meerblick. Innerhalb eines 2-Kilometer-Radius befinden sich Kindergärten, Schulen, Sporteinrichtungen und Geschäfte — alles für ein komfortables tägliches Leben.
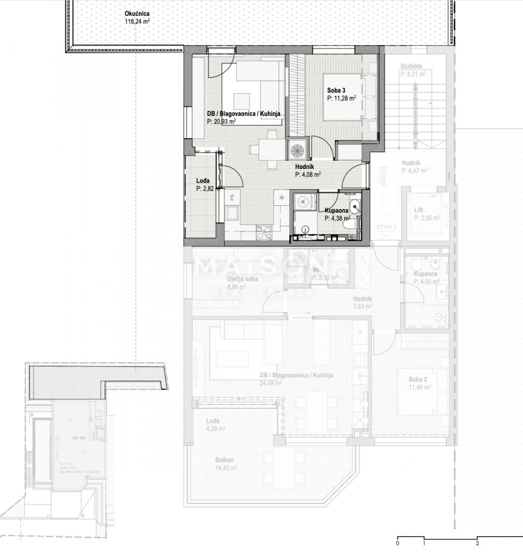
WOHNUNGSAUFTEILUNG – 40,67 m² Wohnfläche
Die Wohnung ist so gestaltet, dass jeder Quadratmeter optimal genutzt wird:
Wohnzimmer mit Essbereich und Küche – 20,93 m²
Schlafzimmer – 11,28 m²
Badezimmer – 4,38 m²
Flur – 4,08 m²
Zusätzliche Flächen:
Loggia – 3,76 m² (berechnet 2,82 m²)
Privater Abstellraum – 3,10 m²
Garten – 118,24 m² (berechnet 11,82 m²)
Parkplatz – 14,87 m² (berechnet 3,72 m²)
GESAMT BERECHNETE FLÄCHE: 58,63 m²
GEBÄUDEMERKMALE
Der Neubau erfüllt höchste Bau- und Wohnstandards:
Fußbodenheizung über Luft-Wasser-Wärmepumpe
Fan-Coil-Kühlsystem im Wohnzimmer und Schlafzimmer
Schüco-Aluminiumfenster mit elektrischen Rollläden/Jalousien
Italienische Feinsteinzeug-Keramik in Bad und Loggia
Hochwertiges Parkett in Wohn- und Schlafräumen
Glasgeländer auf der Loggia
Aufzug und gepflegte Allgemeinflächen
Tiefgarage mit Vorbereitung für E-Ladestationen
Ein besonderes Highlight dieser Einheit ist der private Garten, ideal für Haustiere, Gartenbereich, Grillzone oder Entspannung im Freien — eine echte Seltenheit bei modernen Neubauten.
Diese Wohnung in Bivio bietet eine perfekte Balance aus Qualität, Funktionalität und exklusiver Küstenlage. Mit modernem Baustandard, privatem Garten, Abstellraum und Parkplatz ist sie eine äußerst attraktive Gelegenheit auf dem Markt.
Für weitere Informationen oder eine Besichtigung stehen wir Ihnen gerne zur Verfügung.
Übersicht
  • Typ: Wohnung
  • Fläche: 40 m2
  • Grundstücksfläche: / m2
  • Zimmer: 2 Zimmer
  • Badezimmer: 1 Zimmer
  • Parkplätze: /
  • Parkplatz: /
  • Garage: /
  • Stockwerk: 1
  • Immobilienansicht: aufs Meer
  • Energieklasse: 1
  • Anzahl der Aufrufe: /
Immobiliendetails
Typ
Wohnung
Fläche
40 m2
Grundstücksfläche
/ m2
Zimmer
2 Zimmer
Badezimmer
1 Zimmer
Parkplätze
/
Parkplatz
/
Garage
/
Stockwerk
1
Immobilienansicht
aufs Meer
Energieklasse
1
Anzahl der Aufrufe
/
Kartenansicht
  • Ort
    RIJEKA
  • Region
    PRIMORSKO-GORANSKA
Agenturinfo
MAISON REAL ESTATE
Verkäufer kontaktieren
+
=

Ähnliche Immobilien