DIKLO (ZADAR) - WOHNUNG S1 ERDGESCHOSS MIT MEERBLICK, GARTEN... DIKLO (ZADAR) - WOHNUNG S1 ERDGESCHOSS MIT MEERBLICK, GARTEN 150m²

507.000 €

Ausstattung
  • 133 m2
  • 4
  • 2
Lage

ZADAR

Beschreibung
DIKLO (ZADAR) - WOHNUNG S1 ERDGESCHOSS MIT MEERBLICK, GARTEN 150m²

Ruhige Lage in Strandnähe. Alle Wohnungen haben Meerblick.

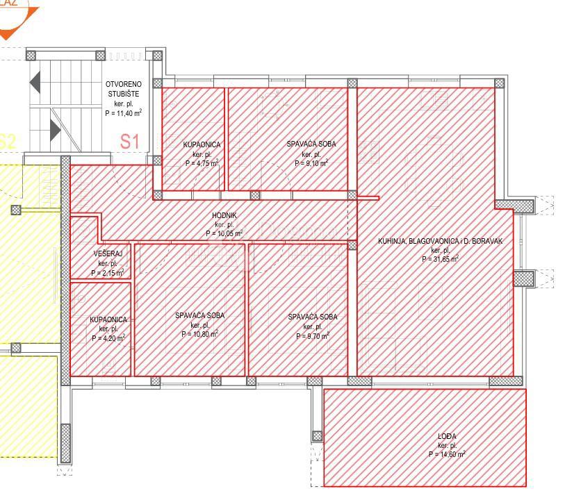
Wohnung S1 befindet sich im Erdgeschoss eines kleineren Wohngebäudes mit insgesamt 6 Wohneinheiten.

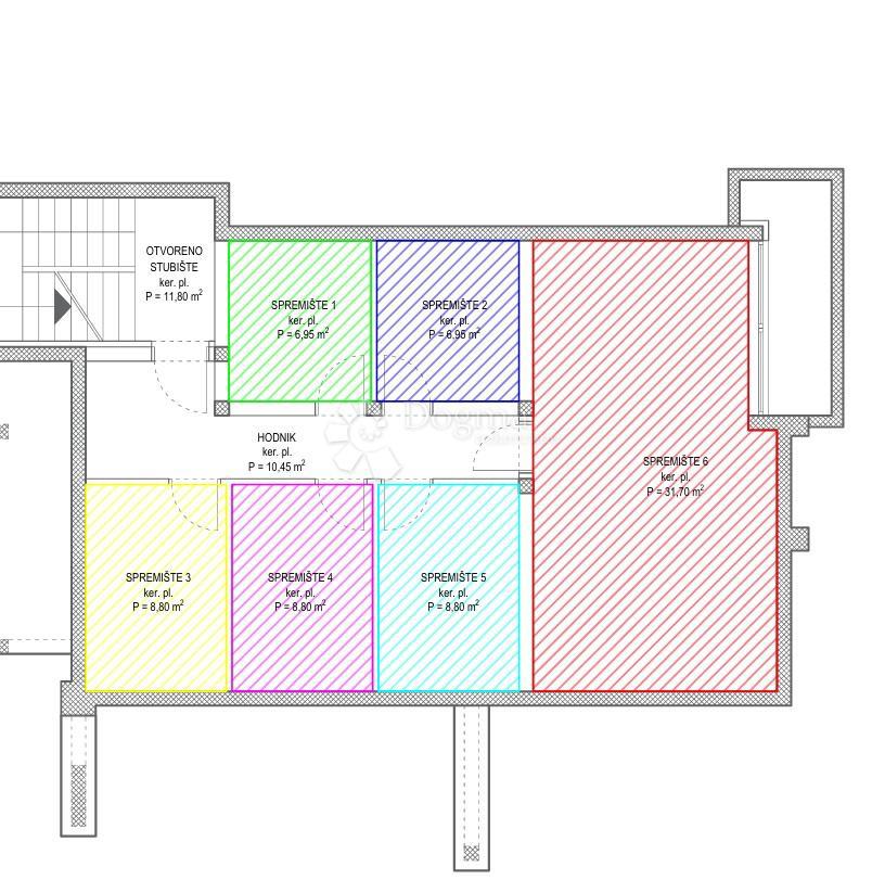
Sie besteht aus einem Flur, Küche, Ess- und Wohnzimmer, drei Schlafzimmern, zwei Badezimmern und einem Waschraum. Die Wohnung verfügt über eine große Loggia von 14,60m², einen großen Abstellraum von 31,70m², zwei Parkplätze, einen großen Garten von 150m² und eine gepflasterte Außenfläche von 19,60m².

Innenwohnfläche: 82,40m². Gesamte Bruttofläche inkl. aller Nebenräume: 228,80m², d.h. 133,62 Netto-Verkaufsfläche.

Finanzierung für EU-Bürger möglich.
Die Nummer eins Immobilienagentur in Kroatien seit 25 Jahren.

Für weitere Informationen:
Vedrana Bašić +385919077396
E-Mail: vedrana.basic@dogma-nekretnine.com
Übersicht
  • Typ: Wohnung
  • Fläche: 133 m2
  • Grundstücksfläche: / m2
  • Zimmer: 4 Zimmer
  • Badezimmer: 2 Zimmer
  • Parkplätze: /
  • Parkplatz: 1
  • Garage: /
  • Stockwerk: /
  • Immobilienansicht: aufs Meer
  • Energieklasse: /
  • Anzahl der Aufrufe: /
Immobiliendetails
Typ
Wohnung
Fläche
133 m2
Grundstücksfläche
/ m2
Zimmer
4 Zimmer
Badezimmer
2 Zimmer
Parkplätze
/
Parkplatz
1
Garage
/
Stockwerk
/
Immobilienansicht
aufs Meer
Energieklasse
/
Anzahl der Aufrufe
/
Kartenansicht
  • Ort
    ZADAR
  • Region
    ZADARSKA
Agenturinfo
Dogma nekretnine d.o.o.
Verkäufer kontaktieren
Dogma nekretnine d.o.o.
Vedrana Bašić
+
=

Ähnliche Immobilien