DIKLO (ZADAR) – WOHNUNG S5 2. STOCK MIT MEERBLICK, DACHTERRA... DIKLO (ZADAR) – WOHNUNG S5 2. STOCK MIT MEERBLICK, DACHTERRASSE 102,35m²

560.000 €

Ausstattung
  • 127 m2
  • 4
  • 2
Lage

ZADAR

Beschreibung
DIKLO (ZADAR) – WOHNUNG S5 2. STOCK MIT MEERBLICK, DACHTERRASSE 102,35m²

Ruhige Lage in Strandnähe. Alle Wohnungen haben Meerblick.

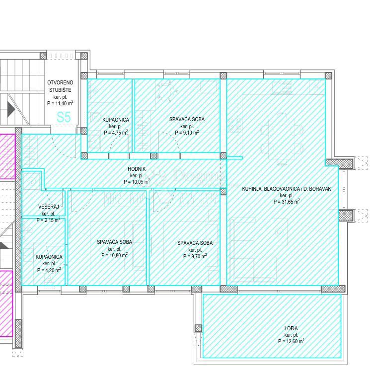
Wohnung S5 befindet sich im zweiten Stock eines kleineren Wohngebäudes mit insgesamt 6 Wohneinheiten.

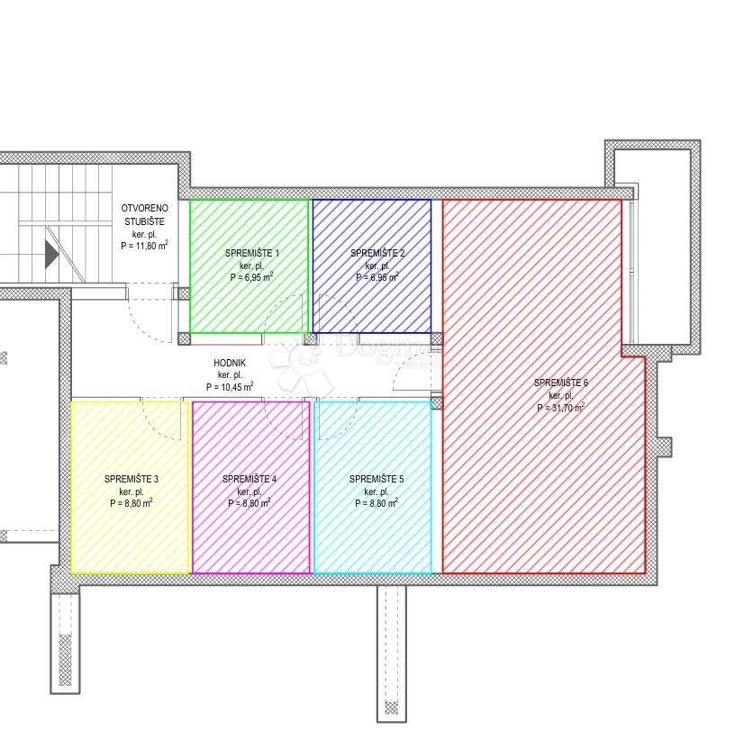
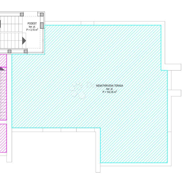
Sie besteht aus einem Flur, Küche, Ess- und Wohnzimmer, drei Schlafzimmern, einem Waschraum und zwei Badezimmern. Die Wohnung verfügt über eine große Loggia von 12,60m², einen Abstellraum von 8,80m² und zwei Parkplätze. Zusätzlich gehört eine große Dachterrasse von 102,35m² mit Panoramablick auf das Meer zur Wohnung.

Innenwohnfläche: 82,40m². Gesamte Bruttofläche inkl. aller Nebenräume: 233,65m², d.h. 127,34 Netto-Verkaufsfläche.

Finanzierung für EU-Bürger möglich.
Die Nummer eins Immobilienagentur in Kroatien seit 25 Jahren.

Für weitere Informationen:
Vedrana Bašić +385919077396
E-Mail: vedrana.basic@dogma-nekretnine.com
Übersicht
  • Typ: Wohnung
  • Fläche: 127 m2
  • Grundstücksfläche: / m2
  • Zimmer: 4 Zimmer
  • Badezimmer: 2 Zimmer
  • Parkplätze: /
  • Parkplatz: 1
  • Garage: /
  • Stockwerk: 2
  • Immobilienansicht: aufs Meer
  • Energieklasse: /
  • Anzahl der Aufrufe: /
Immobiliendetails
Typ
Wohnung
Fläche
127 m2
Grundstücksfläche
/ m2
Zimmer
4 Zimmer
Badezimmer
2 Zimmer
Parkplätze
/
Parkplatz
1
Garage
/
Stockwerk
2
Immobilienansicht
aufs Meer
Energieklasse
/
Anzahl der Aufrufe
/
Kartenansicht
  • Ort
    ZADAR
  • Region
    ZADARSKA
Agenturinfo
Dogma nekretnine d.o.o.
Verkäufer kontaktieren
Dogma nekretnine d.o.o.
Vedrana Bašić
+
=

Ähnliche Immobilien