Modernes Haus zu verkaufen in der Nähe von Poreč – 92 m² mit... Modernes Haus zu verkaufen in der Nähe von Poreč – 92 m² mit Pool und Garten

460.000 €

Ausstattung
  • 92 m2
  • 4
  • 1
Lage

KAŠTELIR , KAŠTELIR - LABINCI

Beschreibung
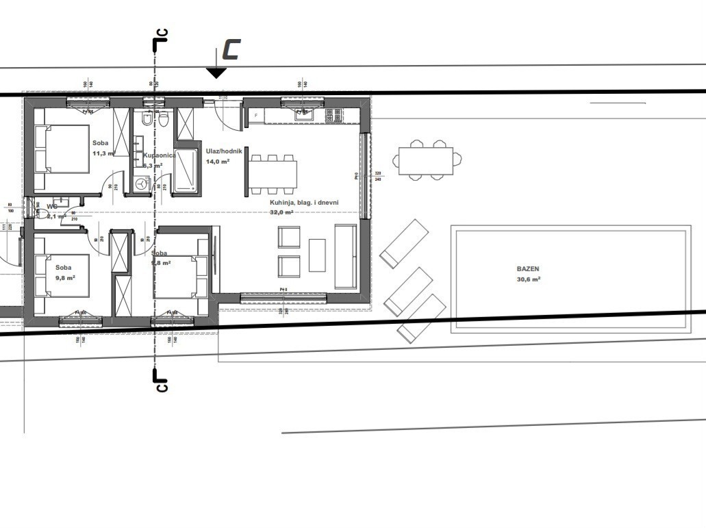
In einer schönen und ruhigen Lage in der Nähe von Poreč, nur 12 km von der Stadt und 8 km vom Meer entfernt, wird ein modernes und hochwertig gebautes Haus verkauft – das letzte in einer Reihe von drei neu gebauten Häusern. Das Grundstück ist ca. 250 m² groß und verfügt über einen privaten Hof, einen großen Swimmingpool und zusätzliche Annehmlichkeiten, die Komfort, Sicherheit und eine hohe Lebensqualität gewährleisten.

Das Haus hat eine Netto-Wohnfläche von 92 m² und besteht aus einem Eingangsbereich, einem geräumigen Wohnzimmer mit Küche und Essbereich, einer überdachten Terrasse, drei Schlafzimmern, einem Badezimmer und einem Gäste-WC. Der Außenbereich umfasst eine Sonnenliegefläche am Pool, einen gepflegten Garten sowie einen geschlossenen Abstellraum mit Außenzugang. Neben dem Haus befinden sich zwei private Parkplätze.

Auf dem Parkplatz am Eingang ist eine Ladestation für Elektrofahrzeuge geplant, und das Haus ist mit einer Vorbereitung für Solarpanels sowie einem Kamin ausgestattet, was die Energieeffizienz und den Komfort weiter erhöht.

Die Heizung erfolgt über elektrische Fußbodenheizung, und Klimaanlagen werden im Wohnzimmer und Flur installiert. Beide Systeme können dank intelligenter Wi-Fi-Thermostate über eine App gesteuert werden.

Die Sicherheit wird durch ein Videoüberwachungssystem mit Kameras an der Vorder- und Rückseite des Hauses gewährleistet, und zusätzlichen Komfort bieten elektrische Rollläden und hochwertige Fenster und Türen.
Beim Bau und der Fertigstellung des Hauses werden hochwertige Materialien verwendet, und das gesamte Projekt ist sorgfältig geplant, um den Anforderungen des modernen Lebens gerecht zu werden – egal, ob Sie ein dauerhaftes Zuhause, ein luxuriöses Ferienhaus oder eine sichere Investition zur Vermietung suchen.
Übersicht
  • Typ: Haus
  • Fläche: 92 m2
  • Grundstücksfläche: 250 m2
  • Zimmer: 4 Zimmer
  • Badezimmer: 1 Zimmer
  • Parkplätze: /
  • Parkplatz: /
  • Garage: /
  • Stockwerk: /
  • Immobilienansicht: /
  • Energieklasse: /
  • Anzahl der Aufrufe: /
Immobiliendetails
Typ
Haus
Fläche
92 m2
Grundstücksfläche
250 m2
Zimmer
4 Zimmer
Badezimmer
1 Zimmer
Parkplätze
/
Parkplatz
/
Garage
/
Stockwerk
/
Immobilienansicht
/
Energieklasse
/
Anzahl der Aufrufe
/
Kartenansicht
  • Ortsteil
    KAŠTELIR - LABINCI
  • Ort
    KAŠTELIR
  • Region
    ISTARSKA
Agenturinfo
HABITARE d.o.o.
Verkäufer kontaktieren
HABITARE d.o.o.
Višnja Simonetti
+
=