Split, Stadtzentrum – schöne komfortable 2-Zimmer-Wohnung 92... Split, Stadtzentrum – schöne komfortable 2-Zimmer-Wohnung 92 m², Top-Lage

700.000 €

Ausstattung
  • 92 m2
Lage

SPLIT

Beschreibung
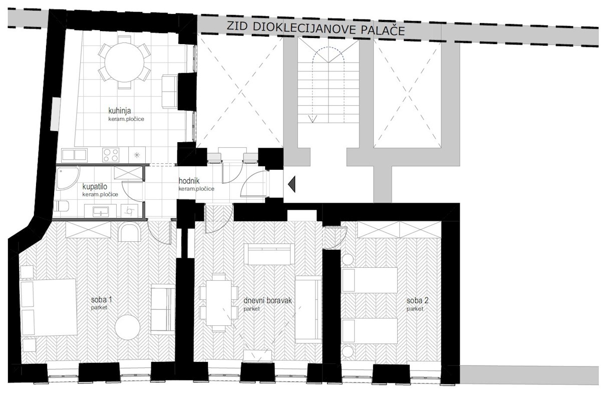
Schöne, komfortable 2-Zimmer-Wohnung mit einer Fläche von 92 m², gelegen im 3. Stock eines historischen Gebäudes im Stadtzentrum von Split.

Die Wohnung besteht aus zwei Schlafzimmern, Wohnzimmer, Küche mit Essbereich und Badezimmer. Eine Wand ist Teil des Diokletianpalastes, hohe Decken, hell und lichtdurchflutet. Vollständig möbliert und ausgestattet.

Ideal sowohl zum Wohnen als auch für touristische Vermietung, in unmittelbarer Nähe aller Einrichtungen.
Übersicht
  • Typ: Wohnung
  • Fläche: 92 m2
  • Grundstücksfläche: / m2
  • Zimmer: / Zimmer
  • Badezimmer: / Zimmer
  • Parkplätze: /
  • Parkplatz: /
  • Garage: /
  • Stockwerk: /
  • Immobilienansicht: /
  • Energieklasse: /
  • Anzahl der Aufrufe: /
Immobiliendetails
Typ
Wohnung
Fläche
92 m2
Grundstücksfläche
/ m2
Zimmer
/ Zimmer
Badezimmer
/ Zimmer
Parkplätze
/
Parkplatz
/
Garage
/
Stockwerk
/
Immobilienansicht
/
Energieklasse
/
Anzahl der Aufrufe
/
Kartenansicht
  • Ort
    SPLIT
  • Region
    SPLITSKO-DALMATINSKA
Agenturinfo
TRGOSTAN
Verkäufer kontaktieren
TRGOSTAN
Sanja Madunic
+
=