Srima - Geschäftsraum PP1, erste Reihe am Meer Srima - Geschäftsraum PP1, erste Reihe am Meer

370.500 €

Ausstattung
  • 92 m2
Lage

SRIMA , VODICE

Beschreibung
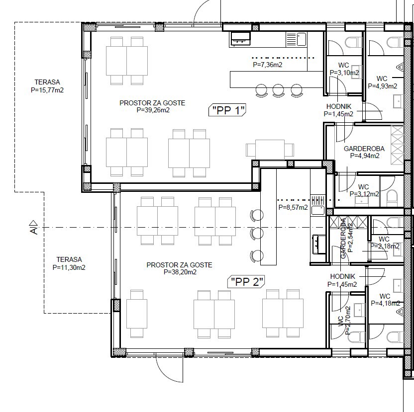
GESCHÄFTSLOKAL ZU VERKAUFEN – PP1, ERSTE REIHE AM MEER – SRIMA, VODICE

Zum Verkauf steht ein Geschäftslokal mit einer Gesamtfläche von 64,16 m2, gelegen im Erdgeschoss eines kleinen Geschäfts-Wohn-Neubaus an hervorragender Lage – erste Reihe am Meer in Srima, direkt bei Vodice.

Das Lokal ist:

- klimatisiert und gut beleuchtet,


- verfügt über drei sanitäre Anlagen,


- mit einer Terrasse von 15,77 m2, einem Hof von 45,61 m2 sowie zwei Parkplätzen mit einer Gesamtfläche von 25 m2 ausgestattet.



Die gesamte Nutzfläche beträgt 92,61 m2.

Diese Immobilie ist ideal für gastronomische, handels- oder dienstleistungsbezogene Tätigkeiten aufgrund ihrer außergewöhnlichen Lage und funktionalen Raumaufteilung. Die Lage bietet während der Touristensaison eine hohe Frequenz sowie unmittelbare Nähe zum Meer und Strand.

ÜBER SRIMA:

Srima ist ein ruhiger, charmanter Küstenort, der administrativ zur Stadt Vodice gehört. Direkt am Meer gelegen, ist Srima bekannt für lange Küstenpromenaden, gepflegte Strände, sauberes Meer und eine entspannte mediterrane Atmosphäre. Im Sommer wird es zu einem lebhaften Touristenziel, während es außerhalb der Saison Ruhe und Stille bietet – ideal zum Arbeiten oder Entspannen.

Die Nähe zu Vodice, einem beliebten Touristenzentrum, erhöht die Attraktivität dieser Lage zusätzlich, und die ausgezeichnete Verkehrsanbindung an Städte wie Šibenik, Zadar und Split macht Srima zu einem perfekten Ort für Geschäft und Leben.



Die agenturprovision betragt 3% inklusive Mehrwertsteuer
Übersicht
  • Typ: Geschäftsraum
  • Fläche: 92 m2
  • Grundstücksfläche: / m2
  • Zimmer: / Zimmer
  • Badezimmer: / Zimmer
  • Parkplätze: /
  • Parkplatz: 24
  • Garage: /
  • Stockwerk: /
  • Immobilienansicht: aufs Meer
  • Energieklasse: /
  • Anzahl der Aufrufe: /
Immobiliendetails
Typ
Geschäftsraum
Fläche
92 m2
Grundstücksfläche
/ m2
Zimmer
/ Zimmer
Badezimmer
/ Zimmer
Parkplätze
/
Parkplatz
24
Garage
/
Stockwerk
/
Immobilienansicht
aufs Meer
Energieklasse
/
Anzahl der Aufrufe
/
Kartenansicht
  • Ortsteil
    VODICE
  • Ort
    SRIMA
  • Region
    ŠIBENSKO-KNINSKA
Agenturinfo
Naš Dom
Verkäufer kontaktieren
Naš Dom
Hrvoje Zurak
+
=