Vodice, geräumige zwei Zimmer Wohnung in einem Neubau - 2 Mi... Vodice, geräumige zwei Zimmer Wohnung in einem Neubau - 2 Minuten vom Strand entfernt

430.000 €

Ausstattung
  • 97 m2
  • 2
  • 2
Lage

VODICE

Beschreibung
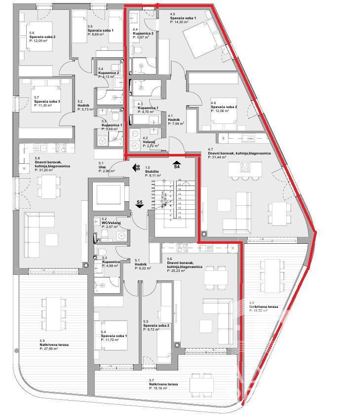
Zum Verkauf steht eine geräumige Zweizimmerwohnung S4 in einem Neubau, gelegen in ausgezeichneter Lage in Vodice, nur zwei Gehminuten vom beliebten Blauen Strand und etwa 400 Meter vom Stadtzentrum entfernt. Die Wohnung befindet sich im ersten Stock eines modernen Wohngebäudes mit insgesamt neun Wohnungen und ist nach Südosten ausgerichtet, was ihr viel Tageslicht sichert.

Sie besteht aus einem Eingangsbereich, Küche, Esszimmer und Wohnzimmer, die ein offenes Konzept bilden und Zugang zu einer großzügigen überdachten Terrasse haben, die ideal ist, um das ganze Jahr über zu genießen. Im Weiteren gibt es zwei Schlafzimmer, von denen eines über ein eigenes Badezimmer verfügt, ein zusätzliches Badezimmer sowie eine praktische Waschküche.

Bei der Bauweise und Ausstattung wurden hochwertige Materialien und Technologien verwendet: Fußbodenheizung im Wohnzimmer und in den Badezimmern, Klimaanlagen in allen Räumen, Außentüren und Eingangstüren Gealan S 8000, Keramikfliesen Marazzi, Armaturen und Duschen Hansgrohe, elektrische Rollladenheber sowie Insektenschutzgitter. Das Gebäude verfügt über einen Aufzug, und das moderne architektonische Design trägt zusätzlich zur Lebensqualität bei. Dazu gehört auch ein Parkplatz.

Vodice ist eines der bekanntesten Touristenzentren an der Adriaküste, berühmt für lange Kies- und Sandstrände, klares Wasser, ein reichhaltiges gastronomisches Angebot und lebhafte Sommerveranstaltungen. Die Stadt ist hervorragend an das Verkehrsnetz angebunden und befindet sich in der Nähe der Nationalparks Krka und Kornati.

Der Käufer zahlt keine 3% Grunderwerbsteuer.

Für weitere Informationen und Besichtigungen kontaktieren Sie uns bitte!

In der Anzeige wurden Renderings verwendet.

Zusätzlich sind folgende Wohnungen im Angebot:

S2 - 81,21 m2 - 365.000,00 Euro

S5 - 78,88 m2 - 365.000,00 Euro

S6 - 107,49 m2 - 480.000,00 Euro

S7 - 97,52 m2 - 487.000,00 Euro

S8 - 78,82 m2 - 394.000,00 Euro

S9 - 107,49 m2 - 540.000,00 Euro



Das Vermittlungshonorar richtet sich nach den Allgemeinen Geschäftsbedingungen der Agentur.
Übersicht
  • Typ: Wohnung
  • Fläche: 97 m2
  • Grundstücksfläche: / m2
  • Zimmer: 2 Zimmer
  • Badezimmer: 2 Zimmer
  • Parkplätze: /
  • Parkplatz: 12
  • Garage: /
  • Stockwerk: 1
  • Immobilienansicht: /
  • Energieklasse: /
  • Anzahl der Aufrufe: /
Immobiliendetails
Typ
Wohnung
Fläche
97 m2
Grundstücksfläche
/ m2
Zimmer
2 Zimmer
Badezimmer
2 Zimmer
Parkplätze
/
Parkplatz
12
Garage
/
Stockwerk
1
Immobilienansicht
/
Energieklasse
/
Anzahl der Aufrufe
/
Kartenansicht
  • Ort
    VODICE
  • Region
    ŠIBENSKO-KNINSKA
Agenturinfo
Adriatic realty
Verkäufer kontaktieren
Adriatic realty
Danijela Ćopić
+
=