Moderne Zwei-Zimmer-Wohnung mit Dachterrasse Moderne Zwei-Zimmer-Wohnung mit Dachterrasse

342.000 €

Ausstattung
  • 85 m2
  • 2
  • 1
Lage

ZADAR

Beschreibung
Eine moderne Zwei-Zimmer-Wohnung in einem Neubau in der Nähe von Zadar steht zum Verkauf. Das Gebäude mit insgesamt neun Wohnungen befindet sich auf einem leicht zum Meer geneigten Grundstück. Dadurch bietet fast jede Wohnung Meerblick, ohne dass andere Grundstücke stören.
 
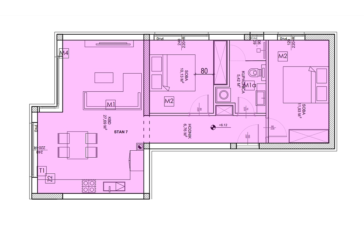
Die Wohnung S7 befindet sich im zweiten Stock des Wohngebäudes und verfügt über eine großzügige Dachterrasse und einen im Preis inbegriffenen Außenstellplatz. Die Terrasse bietet Meerblick. Die Wohnung selbst besteht aus zwei Schlafzimmern, einem Badezimmer und einem Flur, der diese Räume mit Küche, Esszimmer und Wohnzimmer verbindet.
 
Eine gemeinsame Treppe führt zu einer privaten, 66 m² großen Dachterrasse, die mit Whirlpool und Pergola zum geselligen Beisammensein einlädt.
 
Kontaktieren Sie uns für weitere verfügbare Wohnungen im Gebäude.
Übersicht
  • Typ: Wohnung
  • Fläche: 85 m2
  • Grundstücksfläche: 79 m2
  • Zimmer: 2 Zimmer
  • Badezimmer: 1 Zimmer
  • Parkplätze: /
  • Parkplatz: /
  • Garage: /
  • Stockwerk: /
  • Immobilienansicht: aufs Meer
  • Energieklasse: /
  • Anzahl der Aufrufe: /
Immobiliendetails
Typ
Wohnung
Fläche
85 m2
Grundstücksfläche
79 m2
Zimmer
2 Zimmer
Badezimmer
1 Zimmer
Parkplätze
/
Parkplatz
/
Garage
/
Stockwerk
/
Immobilienansicht
aufs Meer
Energieklasse
/
Anzahl der Aufrufe
/
Kartenansicht
  • Ort
    ZADAR
  • Region
    ZADARSKA
Agenturinfo
BROKER - Real Estate Agency
Verkäufer kontaktieren
BROKER - Real Estate Agency
Darko Radelja
+
=