Umgebung von Pula, geräumiges Haus mit fünf Wohnungen und zw... Umgebung von Pula, geräumiges Haus mit fünf Wohnungen und zwei Schwimmbecken.

990.000 €

Ausstattung
  • 450 m2
  • 17
  • 10
Lage

PULA

Beschreibung
Pula, Umgebung - zu verkaufen ein Haus mit 450 m², fünf Wohnungen und zwei Schwimmbädern

Zum Verkauf steht ein geräumiges und wunderschönes Haus in der ruhigen Umgebung von Pula, nur 7 km von der Küste und den Stränden entfernt. Umgeben von üppigem Grün, hat dieses Wohnhaus eine gesamte Bruttofläche von 450 m² und befindet sich auf einem Grundstück von 1.260 m². Im gepflegten Garten gibt es zwei Schwimmbäder mit einer Fläche von 40 m² und 30 m², mit einer Liegefläche, überdachten Terrassen und einem großen Außenkamin.

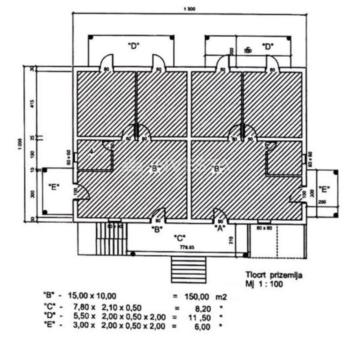
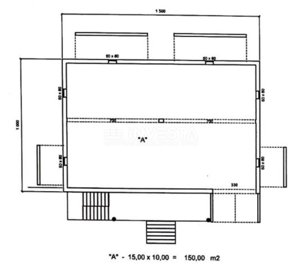
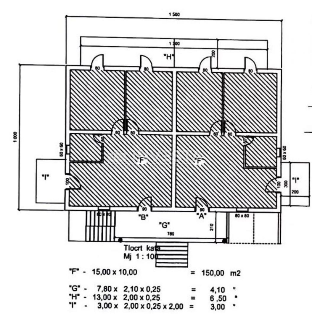
Das Wohngebäude erstreckt sich über drei Etagen: Keller, Erdgeschoss und erstes Obergeschoss und besteht aus insgesamt fünf Wohneinheiten (fünf Wohnungen).

DETAILLIERTE AUFTEILUNG - KELLER (eine Wohneinheit):

Innentreppe: Treppe in der Wohnung, die Zugang zu allen Räumen bietet.
Eingangsflur: Geräumiger Flur, der mit allen Räumen in der Wohnung verbunden ist.
Vorraum zur Wohnung: Geräumiger Bereich vor dem Eingang zur Wohnung.
Geräumige Küche mit Esszimmer und Wohnzimmer: Offener Raum für alle notwendigen Aktivitäten und gemütliches Wohnen.
Vier Schlafzimmer: Bequeme und geräumige Schlafzimmer mit Platz für ein Doppelbett und einen Schrank.
Abstellraum: Raum mit Einbauschrank zur Aufbewahrung von Kleidung.
Zwei Waschküchen: Räume zum Waschen, Trocknen und Bügeln von Wäsche.
Zwei Badezimmer: Vollständig ausgestattete Badezimmer mit Duschkabine.
DETAILLIERTE AUFTEILUNG ERDGESCHOSS (zwei identische Wohneinheiten):

Überdachter Außenvorraum: Geräumiger Vorraum, der als überdachte Terrasse dienen kann.
Vorraum zur Wohnung: Geräumiger Flur mit Gäste-WC.
Geräumige Küche mit Esszimmer und Wohnzimmer: Offener Raum für alle notwendigen Aktivitäten und gemütliches Wohnen mit Zugang zur Terrasse.
Zwei Schlafzimmer: Bequeme und geräumige Schlafzimmer mit Platz für ein Doppelbett und einen Schrank, mit Zugang zur Terrasse.
Badezimmer: Vollständig ausgestattetes Badezimmer mit Duschkabine.
DETAILLIERTE AUFTEILUNG ERSTES OBERGESCHOSS (zwei identische Wohneinheiten):

Überdachte Außentreppe: Treppe, die zum ersten Obergeschoss der Wohneinheiten führt.
Überdachter Außenvorraum: Geräumiger Vorraum, der als überdachte Terrasse dienen kann.
Vorraum zur Wohnung: Geräumiger Flur mit Gäste-WC.
Geräumige Küche mit Esszimmer und Wohnzimmer: Offener Raum für alle notwendigen Aktivitäten und gemütliches Wohnen mit Zugang zur Terrasse.
Zwei Schlafzimmer: Bequeme und geräumige Schlafzimmer mit Platz für ein Doppelbett und einen Schrank, mit Zugang zur Terrasse.
Badezimmer: Vollständig ausgestattetes Badezimmer mit Duschkabine.
ZUSÄTZLICHE INFORMATIONEN:

Kühl-/Heizungssystem: Inverter-Klimaanlagen in allen fünf Wohneinheiten.
Heizsystem in den Wohneinheiten: Fußbodenheizung.
Anschlüsse: Das Haus ist an eine zweikammerige Klärgrube angeschlossen.
Ausstattung: Die Immobilie wird komplett möbliert verkauft, was dem neuen Eigentümer ermöglicht, ohne zusätzliche Investitionen einzuziehen.
Solarpanels: Das Haus ist mit Solarpanels zur Wassererwärmung ausgestattet.
Parkplätze: Acht Parkplätze sind im Innenhof des Grundstücks gesichert.
Dokumentation: Nutzungsbescheinigung, Grundbuchauszug.
Strände: 7 km vom Meer und den schönen Stränden entfernt.
Zentrum von Pula: 7 km vom Stadtzentrum von Pula entfernt.
LAGEBESCHREIBUNG: Pula ist die größte Stadt der Gespanschaft Istrien, im Südwesten der Halbinsel Istrien gelegen, in einer gut geschützten Bucht, in der sich das berühmte römische Amphitheater befindet. Die Arena ist das bekannteste Symbol von Pula und eines der am besten erhaltenen römischen Amphitheater der Welt. Pula ist seit der Römerzeit das kulturelle Zentrum Istriens mit zahlreichen historischen Attraktionen, die Touristen aus aller Welt anziehen. Pula ist hervorragend mit allen Verkehrsmitteln verbunden, Autobahn, Eisenbahn, Flughafen und Nautikhäfen. Sie ist umgeben von wunderschöner mediterraner Natur, zahlreichen Stränden und dem berühmten Brijuni-Archipel.

FAZIT: Es handelt sich um eine Immobilie, die sich an einem idealen Standort in der Nähe aller für das tägliche Leben notwendigen Einrichtungen befindet. Diese Immobilie bietet zahlreiche Möglichkeiten für zukünftige Eigentümer und ist eine Aufmerksamkeit wert.

Für weitere Informationen oder zur Vereinbarung einer Besichtigung kontaktieren Sie uns bitte.

Übersicht
  • Typ: Haus
  • Fläche: 450 m2
  • Grundstücksfläche: 1260 m2
  • Zimmer: 17 Zimmer
  • Badezimmer: 10 Zimmer
  • Parkplätze: /
  • Parkplatz: 1
  • Garage: /
  • Stockwerk: /
  • Immobilienansicht: /
  • Energieklasse: /
  • Anzahl der Aufrufe: /
Immobiliendetails
Typ
Haus
Fläche
450 m2
Grundstücksfläche
1260 m2
Zimmer
17 Zimmer
Badezimmer
10 Zimmer
Parkplätze
/
Parkplatz
1
Garage
/
Stockwerk
/
Immobilienansicht
/
Energieklasse
/
Anzahl der Aufrufe
/
Kartenansicht
  • Ort
    PULA
  • Region
    ISTARSKA
Agenturinfo
INVESTA Real Estate
Verkäufer kontaktieren
+
=