Baderna, neue moderne Villen mit Pool - im Bau Baderna, neue moderne Villen mit Pool - im Bau

549.998 €

Ausstattung
  • 148 m2
  • 5
  • 3
Lage

POREČ

Beschreibung
K239

Eine Villa zum Verkauf in der Nähe von Baderna.
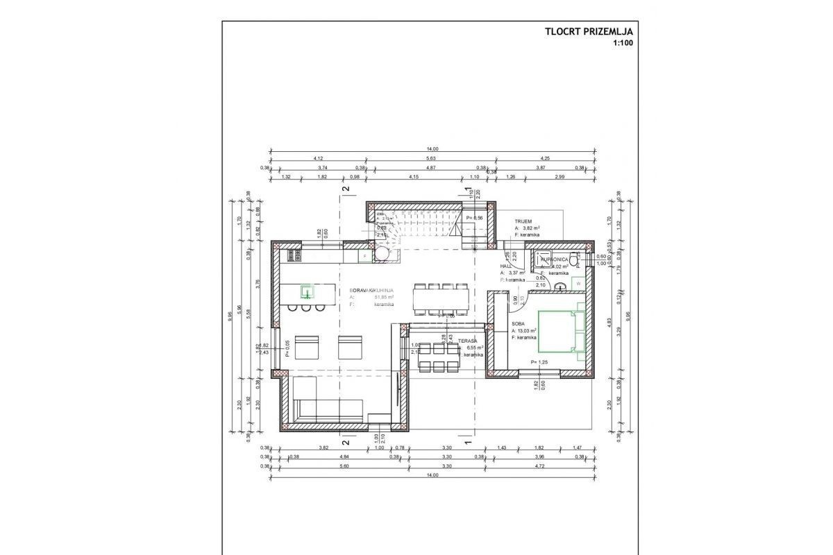
Die Villa besteht im Erdgeschoss aus einer Eingangshalle, einer Küche mit Esszimmer und Wohnzimmer, einem Schlafzimmer mit Bad und einem Abstellraum.
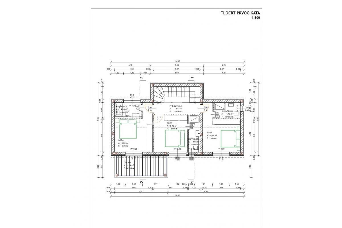
Die erste Etage besteht aus einer Eingangshalle, drei Schlafzimmern, zwei Badezimmern und einer Terrasse.
Im Innenhof der Villa befindet sich ein 32 m2 großer Swimmingpool

Die Heizung wird eine elektrische Fußbodenheizung und eine Klimaanlage sein.

Spezifikation



Haus 148,84 m2×2.175,00 EUR 323.727,00 EUR

Schwimmbad 36,65 m2×750,00 EUR 27.487,50 EUR

Wege und Terrasse 71,95 m2 × 225,00 EUR 16.188,75 EUR

Zwei Parkplätze 32,76 m2 ×550 EUR 18.018,00 EUR

Rasen und Grünflächen 436,62 m2×125 EUR 54.577,50
Übersicht
  • Typ: Haus
  • Fläche: 148 m2
  • Grundstücksfläche: 698 m2
  • Zimmer: 5 Zimmer
  • Badezimmer: 3 Zimmer
  • Parkplätze: /
  • Parkplatz: /
  • Garage: /
  • Stockwerk: /
  • Immobilienansicht: /
  • Energieklasse: /
  • Anzahl der Aufrufe: /
Immobiliendetails
Typ
Haus
Fläche
148 m2
Grundstücksfläche
698 m2
Zimmer
5 Zimmer
Badezimmer
3 Zimmer
Parkplätze
/
Parkplatz
/
Garage
/
Stockwerk
/
Immobilienansicht
/
Energieklasse
/
Anzahl der Aufrufe
/
Kartenansicht
  • Ort
    POREČ
  • Region
    ISTARSKA
Agenturinfo
ISTRA PLUS
Verkäufer kontaktieren
ISTRA PLUS
Tea Radolović-Ježak
+
=