COSTABELLA, BIVIO, KANTRIDA – exklusive Wohnung 43,44 m2, 1.... COSTABELLA, BIVIO, KANTRIDA – exklusive Wohnung 43,44 m2, 1. Stock, 100 m vom Meer entfernt, schöne Aussicht + Garten 118 m2 – WOHNUNG 3

360.000 €

Ausstattung
  • 43 m2
  • 2
  • 1
Lage

RIJEKA

Beschreibung
COSTABELLA, BIVIO, KANTRIDA – exklusive Wohnung 43,44 m2, 1. Stock, 100 m vom Meer entfernt, schöne Aussicht + Garten 118 m2 – WOHNUNG 3

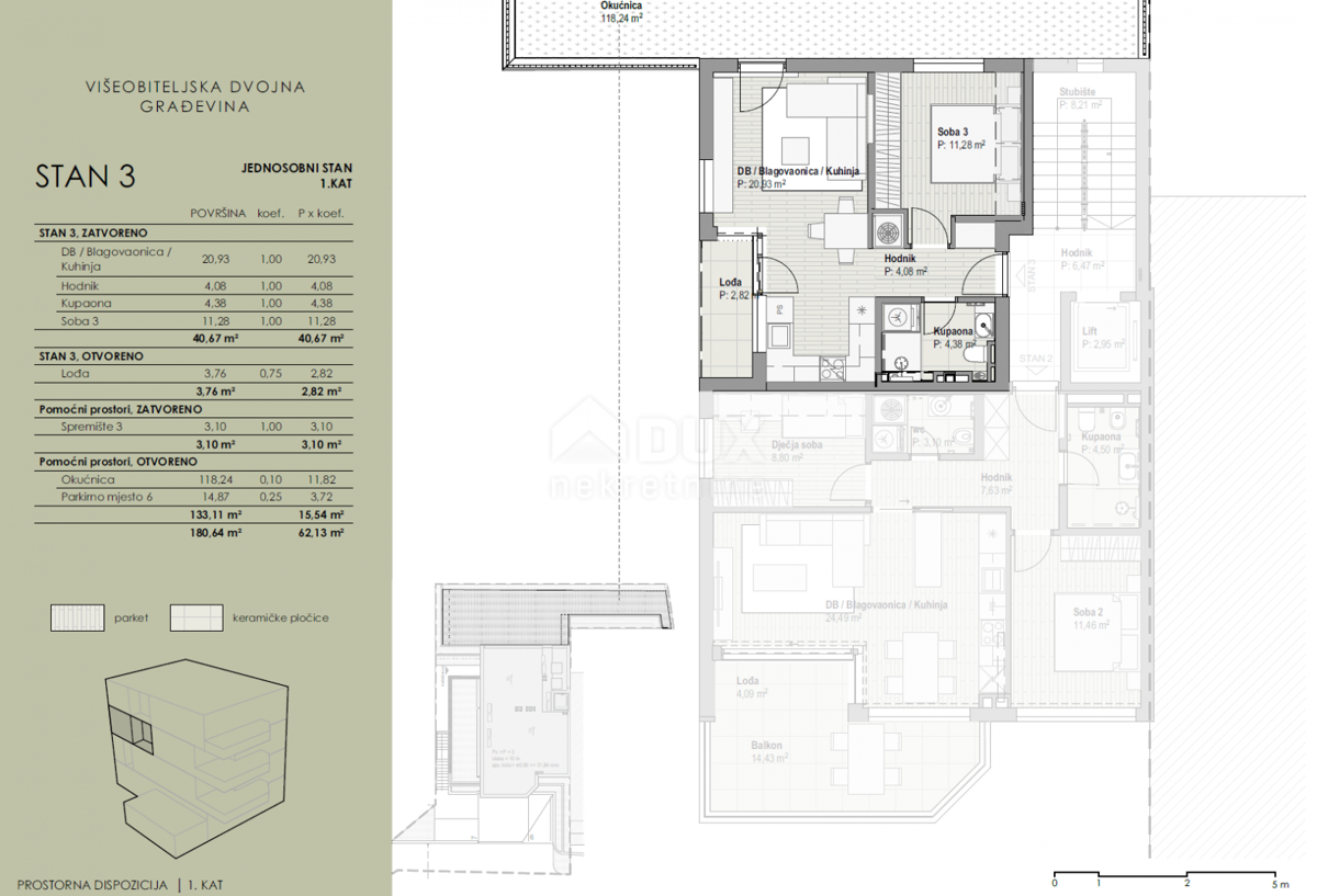
WOHNUNG 3 – Einzimmerwohnung im Bereich der 1. Etage mit Loggia und eigener Loggia Garten. Nebenräume bestehen aus einem separaten Abstellraum und 1 offenen Parkplatz. IDEE DES PROJEKTS: Das Projekt stellt eine Vision des Wohnungsbaus dar, die auf moderne Lösungen und Lebensqualität in Wohnungen setzt. BESCHREIBUNG UND ORGANISATION: Das gesamte Gebäude beherbergt auf seinen 4 Etagen vier Wohnungen unterschiedlicher Quadratmeterzahl und einen Keller mit Garagenplatz. Zu Parkzwecken befinden sich die meisten Stellplätze im Untergeschoss, das für das Laden von Elektroautos vorbereitet wird, d. h. Kanäle für die Stromversorgung sind installiert. Benötigt der Wohnungseigentümer eine Ladestation, muss er lediglich die Kabel verlegen und den Strom für den Strom besorgen. Neben Parkplätzen im Keller oder auf dem Grundstück ist jeder Wohnung ein eigener Abstellraum zugeordnet. Der Haupteingang des Gebäudes befindet sich im Erdgeschoss und ist über eine Außentreppe erreichbar. Der Zugang zu den Wohnungen erfolgt über eine Kommunikationsvertikale, innerhalb derer Treppenhaus und Aufzug geschlossen sind. Bei der Planung ließen sich die Investoren von der Idee leiten, dass alle Wohnungen über Wohnräume verfügen sollten, die nach Süden oder Westen ausgerichtet sind und die Möglichkeit haben, ins Freie zu gelangen, um den Wohnungen ein Höchstmaß an Privatsphäre und Aussichtsmöglichkeit zu bieten. Sie organisierten die Wohnungen so, dass die Räume bestmöglich genutzt werden und für die Aufbewahrung von Kleiderschränken oder anderen Dingen geeignet sind. Jede Wohnung verfügt zusätzlich zu den geräumigen Kleiderschränken in allen Schlafzimmern über einen Platz für eine Garderobe im Eingangsbereich. LAGE: Das Grundstück befindet sich in Costabella - Bivio, einem sehr attraktiven Standort aufgrund seiner Lage in Bezug auf Rijeka, Opatija, der Nähe zum Meer, der Ringstraße und anderen Einrichtungen. Die Anlage befindet sich im westlichen Teil der Stadt Rijeka. Die unmittelbare Nähe zum Meer in fußläufiger Entfernung bietet die Möglichkeit, die Sommersaison, frische Luft und einen Panoramablick auf die Kvarner-Bucht optimal zu nutzen. Der Standort verfügt über eine sehr gute Anbindung an Schnellstraßen und Autobahnen in andere Teile der Stadt, nach Istrien, in den Rest Kroatiens und in die umliegenden Länder. Westlich des Standortes liegt Opatija, erreichbar über die Hauptstraße direkt neben dem Gehege. Opatija ist als sehr bekanntes Touristen- und Kurziel bekannt und wird auch „die Perle der Adriaküste“ genannt. Soziale Einrichtungen wie Kindergärten, Schulen, Sporthallen und Geschäfte befinden sich im Umkreis von 2 km. Diese Unterkunft liegt 100 Meter Luftlinie oder 1 Minute zu Fuß vom Meer entfernt. Eine Immobilie, von der aus Sie das Meer und den Strand buchstäblich in einer Minute zu Fuß erreichen können! EINE EINZIGARTIGE IMMOBILIE IN TOLLER LAGE, DIE IHRE AUFMERKSAMKEIT AUF jeden Fall wert ist!!!

Sehr geehrte Kunden, die Agenturprovision wird gemäß den Allgemeinen Geschäftsbedingungen berechnet: www.dux-nekretnine.hr/opci-uvjeti-poslovanja
Übersicht
  • Typ: Wohnung
  • Fläche: 43 m2
  • Grundstücksfläche: 118 m2
  • Zimmer: 2 Zimmer
  • Badezimmer: 1 Zimmer
  • Parkplätze: /
  • Parkplatz: /
  • Garage: 1
  • Stockwerk: 1
  • Immobilienansicht: aufs Meer
  • Energieklasse: /
  • Anzahl der Aufrufe: /
Immobiliendetails
Typ
Wohnung
Fläche
43 m2
Grundstücksfläche
118 m2
Zimmer
2 Zimmer
Badezimmer
1 Zimmer
Parkplätze
/
Parkplatz
/
Garage
1
Stockwerk
1
Immobilienansicht
aufs Meer
Energieklasse
/
Anzahl der Aufrufe
/
Kartenansicht
  • Ort
    RIJEKA
  • Region
    PRIMORSKO-GORANSKA
Agenturinfo
DUX Nekretnine
Verkäufer kontaktieren
DUX Nekretnine
Tony Jerković
+
=