Wohnung Kolovare, Zadar, 206,12m2 Wohnung Kolovare, Zadar, 206,12m2

0 €

Ausstattung
  • 206 m2
  • 4
  • 5
Lage

ZADAR

Beschreibung

Zum Verkauf steht ein wunderschönes Luxusapartment in Zadar, das sich in unmittelbarer Nähe der Halbinsel und des Stadtzentrums befindet.

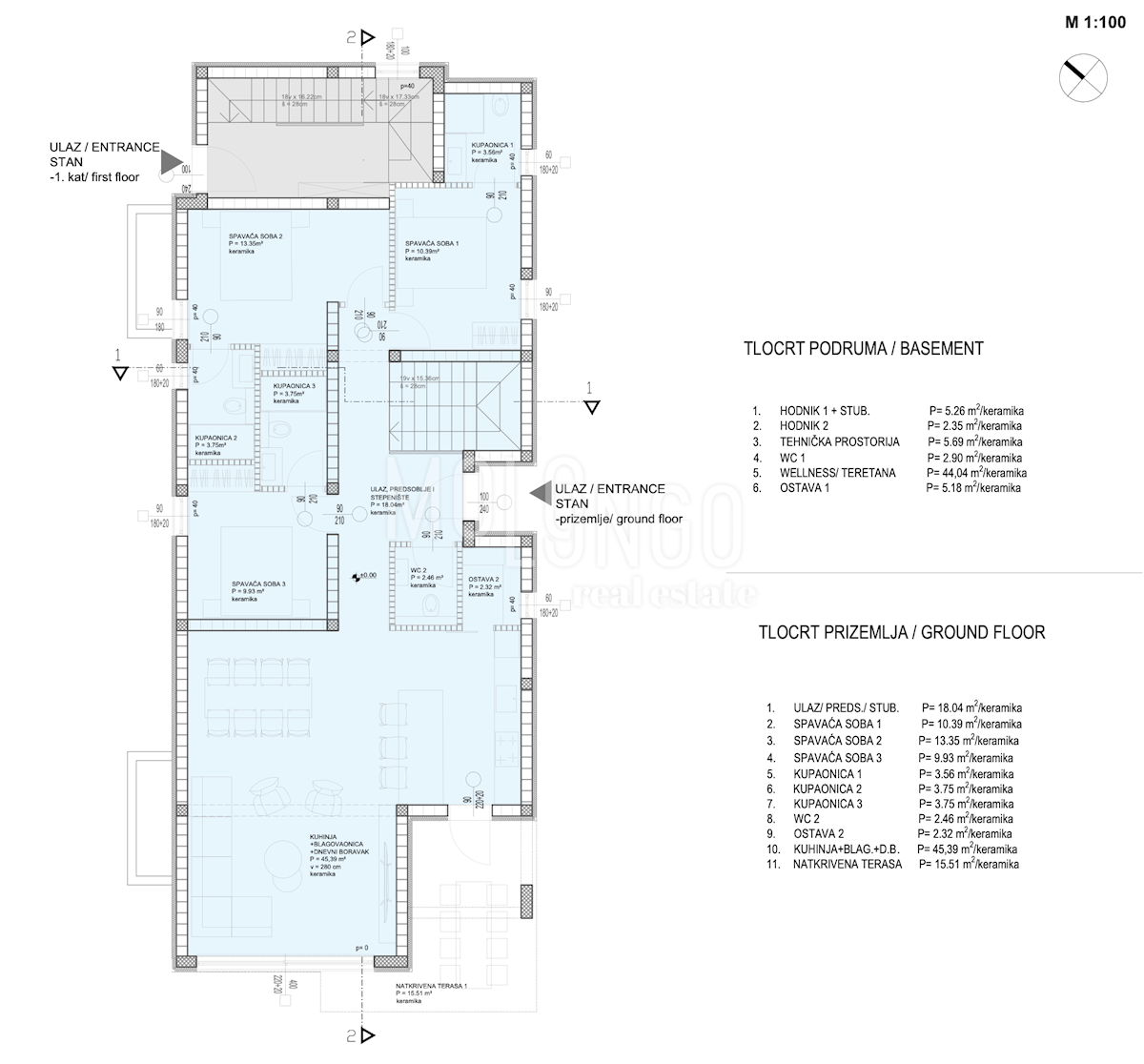
Dieses luxuriöse Apartment befindet sich in einer Villa mit nur zwei Wohneinheiten (völlig getrennt, jede mit separatem Eingang und ohne gemeinsame Flure) und besteht aus einer Eingangshalle, einem Abstellraum, einer Gästetoilette, drei Schlafzimmern mit jeweils eigenem Bad und Ausgestattete offene Küche mit Wohn- und Esszimmer, die direkten Zugang zu einer überdachten Terrasse mit Blick auf das Meer bietet, die einen Grill und Platz für Mahlzeiten im Freien, einen 9 x 4 m großen Swimmingpool, eine Liegewiese und eine Außendusche enthält.


Eine Besonderheit dieser Wohnung ist auch ein privater Wellnessbereich im Untergeschoss des Gebäudes, der aus einem Fitnessstudio und einer Sauna besteht.

Die Wohnung wird komplett adaptiert mit modernen Möbeln verkauft, beim Bau wird auf hohe Qualitätsstandards geachtet mit Top-Ausstattung wie Wärmepumpen zum Kühlen und Heizen, Fußbodenheizung in allen Räumen, dreischichtige Aluminiumschreinerei, Thermofassade, Jalousien mit elektrischen Liftern, Sicherheitstüren, Keramik und erstklassiges Parkett, die Möglichkeit, Ausrüstung und Materialien in Absprache mit dem Investor auszuwählen und viele andere Details. Der erwartete Energieausweis ist A.

Bauschluss: 25.01

Aufgrund der hervorragenden Lage und der Nähe zum nur 1 km entfernten Zentrum eignet es sich auch ideal als Anlageobjekt.

Eine ausgezeichnete Immobilie, die Aufmerksamkeit verdient.
Auf Wunsch senden wir Ihnen Fotos der Wohnung zu.

Für weitere Informationen und Besichtigungen wenden Sie sich bitte an den Makler.
Übersicht
  • Typ: Wohnung
  • Fläche: 206 m2
  • Grundstücksfläche: 200 m2
  • Zimmer: 4 Zimmer
  • Badezimmer: 5 Zimmer
  • Parkplätze: /
  • Parkplatz: /
  • Garage: /
  • Stockwerk: 1
  • Immobilienansicht: aufs Meer
  • Energieklasse: /
  • Anzahl der Aufrufe: /
Immobiliendetails
Typ
Wohnung
Fläche
206 m2
Grundstücksfläche
200 m2
Zimmer
4 Zimmer
Badezimmer
5 Zimmer
Parkplätze
/
Parkplatz
/
Garage
/
Stockwerk
1
Immobilienansicht
aufs Meer
Energieklasse
/
Anzahl der Aufrufe
/
Kartenansicht
  • Ort
    ZADAR
  • Region
    ZADARSKA
Agenturinfo
Molo Longo
Verkäufer kontaktieren
Molo Longo
Filip Popović
+
=

Ähnliche Immobilien